Informace

Byt, 1+kk

Jihozápadně orientovaný zrekonstruovaný byt s lodžií a garážovým stáním je součástí bytového domu s výtahem na klidném a zeleném místě ve starém Proseku jen pár kroků od stanice metra. 

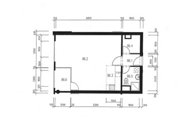
Účelná dispozice bytu ve 3. podlaží se skládá z třicetimetrové obytné místnosti s kuchyní a vstupem na lodžii, koupelny (sprchový kout, WC, umyvadlo, přípojka na pračku), šatny a předsíně. Lodžie poskytuje výhled na věž blízkého kostela. Díky jihozápadní orientaci je byt zejména v letních měsících pěkně prosvětlen

Dům byl zkolaudován v r. 2006. Byt je nově zrekonstruován, má novou kuchyni a vinylovou podlahu, okna jsou plastová s dvojskly. K bytu je nutné dokoupit garážové stání za 400 000 Kč.

Pěkná lokalita historického jádra čtvrti Prosek se zelení, kostelem sv. Václava z 2. poloviny 11. století a barokní zvonicí. V pohodlném dosahu se nachází obchodní centrum se supermarketem a lékárnou, několik restaurací i sportovišť. Oblast zpříjemňuje blízký přírodní park Prosecké skály, lesopark nebo vinice. Díky blízké stanici metra i autobusové zastávce je místo skvěle dostupné MHD, autem se dá snadno napojit na dálnici D8 nebo D11 a Pražský okruh.  

Podlahová plocha 43,2 m2, lodžie 2,5 m2.

Kromě běžných prohlídek nemovitostí nabízíme také videoprohlídky v reálném čase přes WhatsApp, FaceTime, Messenger, Skype ad.

Vybavení

  • Garáž

Půdorys

  • Půdorys 1

Přehledová tabulka

  • Referenční číslo
    100546
  • Prodejní cena
    Prodáno
  • Poplatky za služby
    2 671 Kč měsíčně
  • Podlahová plocha *
    43 m²
  • Lodžie
    2 m²
  • Celková plocha
    45 m²
  • Parkování
    Ano
  • Sklep
    -
  • PENB
    B
* Výměra jednotky dle bytového zákona. Plocha je tvořena součtem vnitřní výměry všech místností.

Lokalita

Okolí nemovitosti

Kontaktujte nás

nepovinné
nepovinné
Veškeré zveřejněné údaje obsažené v tomto inzerátu mají pouze informativní charakter a nejsou nabídkou ve smyslu § 1731 nebo § 1732 občanského zákoníku, ani se nejedná o veřejný příslib dle § 1733 občanského zákoníku. Z této nabídky tak nikomu nevzniká nárok na uzavření smlouvy. Společnost SVOBODA & WILLIAMS s.r.o. zprostředkovává údaje (informace) nabyté v dobré víře od vlastníka nemovité věci a z tohoto důvodu nenese odpovědnost ze jejich úplnost, správnost a přesnost. Současně není oprávněna uzavírat jménem vlastníka nemovité věci jakékoliv smlouvy spojené s prodejem nemovitosti.

Nejčerstvější nabídky do Vašeho e-mailu

Lokalita
Parametry
Velikost
Min.
Max.
Cenové rozpětí
Cena min.
Cena max.
Cenové rozpětí
Cena min.
Cena max.