Informace

Byt, 2+kk

Příjemně světlý zrekonstruovaný byt s velkou terasou a výhledem do košaté koruny stromu je umístěn ve 3. patře bytového domu bez výtahu. Oblíbená čtvrť Vršovice nabízí vše potřebné na dosah ruky, snadné spojení s centrem a kultivované prostředí.

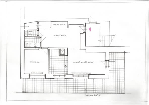
Plocha bytu je rozdělena na rohový obývací pokoj s otevřenou kuchyní a vstupem na severozápadní prostornou terasu, 1 ložnici, koupelnu, samostatnou toaletu, technickou místnost (s přípojkou na pračku) a velkou vstupní halu využívanou i jako pracovna a šatna

Kompletní rekonstrukce bytu dle architektonického návrhu proběhla v r. 2017. Podlahy jsou původní renovované parketové, okna plastová s dvojskly, v obou pokojích je klimatizační jednotka. Vytápění ústřední, do bytu je zaveden plyn (využívaný k vaření). K bytu přísluší sklep a podíl na pozemku u domu. 

Dům je součástí tradiční zástavby na rozmezí Vršovic a Strašnic. V rychlém pěším dosahu je supermarket, školy od mateřské po gymnázium a lékařské služby. Konají se zde vyhlášené farmářské trhy a nedaleko jsou také kavárny a restaurace. Téměř u domu staví autobus, kterým lze během chvilky dojet ke stanici metra Flora nebo až do centra k přestupní stanici Florenc, v docházkové vzdálenosti je i tramvajová zastávka.

Užitná plocha 63,24 m2, terasa 34,37 m2, sklep cca 2 m2.

Družstevní vlastnictví, družstvo má příjem z pronájmu nebytového prostoru v přízemí domu.

Vybavení

  • Klimatizace
  • Sklep

Půdorys

  • Půdorys 1

Přehledová tabulka

  • Referenční číslo
    101564
  • Prodejní cena
    Prodáno
  • Podlahová plocha *
    63 m²
  • Terasa
    34 m²
  • Celková plocha
    97 m²
  • Parkování
    -
  • Sklep
    Ano
  • PENB
    D
* Výměra jednotky dle bytového zákona. Plocha je tvořena součtem vnitřní výměry všech místností.

Lokalita

Okolí nemovitosti

Kontaktujte nás

nepovinné
nepovinné
Veškeré zveřejněné údaje obsažené v tomto inzerátu mají pouze informativní charakter a nejsou nabídkou ve smyslu § 1731 nebo § 1732 občanského zákoníku, ani se nejedná o veřejný příslib dle § 1733 občanského zákoníku. Z této nabídky tak nikomu nevzniká nárok na uzavření smlouvy. Společnost SVOBODA & WILLIAMS s.r.o. zprostředkovává údaje (informace) nabyté v dobré víře od vlastníka nemovité věci a z tohoto důvodu nenese odpovědnost ze jejich úplnost, správnost a přesnost. Současně není oprávněna uzavírat jménem vlastníka nemovité věci jakékoliv smlouvy spojené s prodejem nemovitosti.

Nejčerstvější nabídky do Vašeho e-mailu

Lokalita
Parametry
Velikost
Min.
Max.
Cenové rozpětí
Cena min.
Cena max.
Cenové rozpětí
Cena min.
Cena max.