Informace

Byt, 3+kk

Kompletně zrekonstruovaný klimatizovaný byt s vysokými stropy a balkonem do pěkně upraveného tichého vnitrobloku se nachází ve 2. patře historického bytového domu stojícího v boční jednosměrné ulici v širším centru, na Vinohradech nedaleko stanice I. P. Pavlova. 

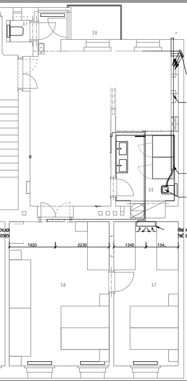
Dispozici tvoří obývací pokoj s kuchyní, 2 ložnice, koupelna (2 sprchové kouty, 2 umyvadla, WC, nika na pračku a sušičku), samostatná toaleta a předsíň. Z obývacího pokoje je možné vstoupit na balkon orientovaný na východ do vnitrobloku. Větší ložnice (25 m2) je průchozí, snadnou úpravou lze vytvořit chodbičku se samostatným vstupem do druhé ložnice. 

Dům i byt prošly v r. 2019 nákladnou kompletní rekonstrukcí. Ve všech pokojích je klimatizace, podlahy jsou dřevěné, okna špaletová, dveře repliky původních. Kuchyňská linka je plně vybavena, koupelnová sanita ve vyšším standardu. Ve společných prostorách jsou citlivě zrenovované původní řemeslné prvky, dům je bez výtahu

Výhodná poloha umožňuje být během chvilky v centru, u všeho potřebného i v některém z mnoha okolních parků. Stanice metra I. P. Pavlova je vzdálena asi 5 minut chůze, ještě blíže je tramvajová zastávka. V okolí fungují restaurace, kavárny, obchody, lékařské služby, státní i soukromé školy včetně Lauderovy MŠ, ZŠ a gymnázia. Lokalitu zpříjemňují parky Na Bělehradské, Folimanka, Grébovka nebo Kateřinská zahrada. 

Podlahová plocha 81,1 m2, balkón 2,7 m2.

Půdorys

  • Půdorys 1

Přehledová tabulka

  • Referenční číslo
    101844
  • Prodejní cena
    Prodáno
  • Podlahová plocha *
    81 m²
  • Balkon
    2 m²
  • Celková plocha
    83 m²
  • Parkování
    -
  • Sklep
    -
  • PENB
    G
* Výměra jednotky dle občanského zákoníku. Plocha je tvořena součtem celé plochy jednotky a ohraničená obvodovými zdmi.

Lokalita

Okolí nemovitosti

Kontaktujte nás

nepovinné
nepovinné
Veškeré zveřejněné údaje obsažené v tomto inzerátu mají pouze informativní charakter a nejsou nabídkou ve smyslu § 1731 nebo § 1732 občanského zákoníku, ani se nejedná o veřejný příslib dle § 1733 občanského zákoníku. Z této nabídky tak nikomu nevzniká nárok na uzavření smlouvy. Společnost SVOBODA & WILLIAMS s.r.o. zprostředkovává údaje (informace) nabyté v dobré víře od vlastníka nemovité věci a z tohoto důvodu nenese odpovědnost ze jejich úplnost, správnost a přesnost. Současně není oprávněna uzavírat jménem vlastníka nemovité věci jakékoliv smlouvy spojené s prodejem nemovitosti.

Nejčerstvější nabídky do Vašeho e-mailu

Lokalita
Parametry
Velikost
Min.
Max.
Cenové rozpětí
Cena min.
Cena max.
Cenové rozpětí
Cena min.
Cena max.