Informace

Byt, 4+kk

Právě dokončený světlý klimatizovaný mezonetový byt s balkonem s výhledem do korun stromů se nachází v nejvyšších podlažích historického bytového domu v Praze 7 – Holešovicích jen pár kroků od Výstaviště, Stromovky a budoucí zastávky rychlodráhy na letiště.

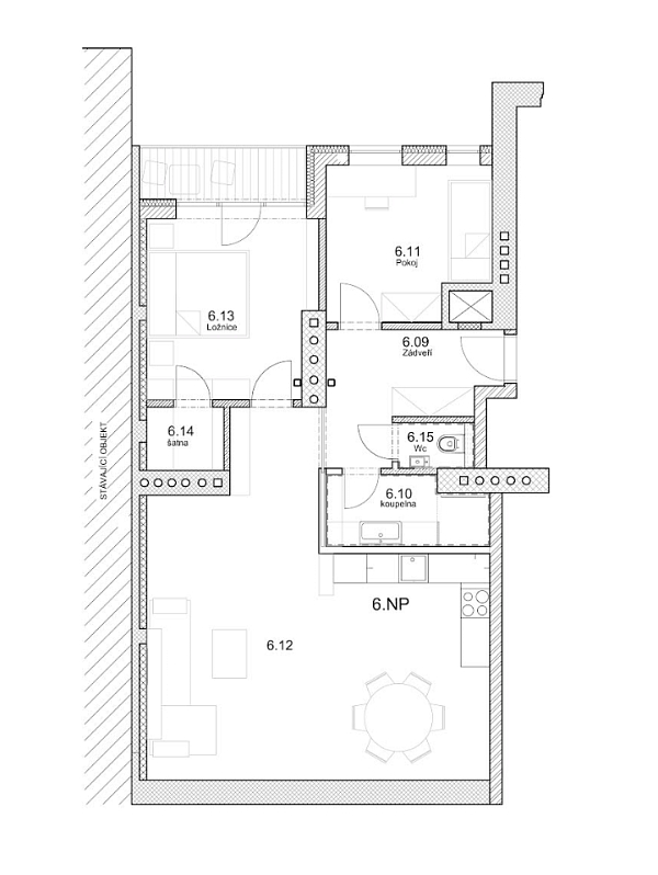
Ve vstupní úrovni (6. NP) se nachází obývací pokoj s přípravou na kuchyni, 2 ložnice; jedna se šatnou a druhá s balkonem orientovaným na severovýchod do zeleného vnitrobloku, dále koupelna, samostatná toaleta a zádveří. V horní úrovni je ložnice na galerii a navazující koupelnou. 

Spoustu denního světla do obývacího pokoje propouštějí velká střešní ateliérová okna, ložnice mají okna do klidného vnitrobloku. Celý byt sjednocují světlé dubové podlahy, všechny pokoje mají klimatizaci. V domě je nový výtah (do mezipater), střecha a nová fasáda do dvorního traktu, nová uliční fasáda je v plánu. 

Vynikající místo v širším centru Prahy, v bezprostřední blízkosti Výstaviště a Veletržního paláce. Skvělou dopravní dostupnost zajišťují tramvaje zastavující hned u domu, daleko není ani stanice metra a nádraží Holešovice, kousek od domu bude i zastávka rychlodráhy na letiště. Lokalitu zpříjemňuje krásně upravená Stromovka. V pěším dosahu funguje obchodní centrum, spousta obchodů, restaurací, bister a kaváren i artové kino. 

Podlahová plocha 105,68 m2, balkon 3,75 m2

Vybavení

  • Výtah
  • Klimatizace
  • Sklep

Půdorys

  • Půdorys 1
  • Půdorys 2

Přehledová tabulka

  • Referenční číslo
    102178
  • Prodejní cena
    Prodáno
  • Podlahová plocha *
    106 m²
  • Terasa
    3 m²
  • Celková plocha
    109 m²
  • Parkování
    -
  • Sklep
    Ano
  • PENB
    G
* Výměra jednotky dle občanského zákoníku. Plocha je tvořena součtem celé plochy jednotky a ohraničená obvodovými zdmi.

Lokalita

Okolí nemovitosti

Kontaktujte nás

nepovinné
nepovinné
Veškeré zveřejněné údaje obsažené v tomto inzerátu mají pouze informativní charakter a nejsou nabídkou ve smyslu § 1731 nebo § 1732 občanského zákoníku, ani se nejedná o veřejný příslib dle § 1733 občanského zákoníku. Z této nabídky tak nikomu nevzniká nárok na uzavření smlouvy. Společnost SVOBODA & WILLIAMS s.r.o. zprostředkovává údaje (informace) nabyté v dobré víře od vlastníka nemovité věci a z tohoto důvodu nenese odpovědnost ze jejich úplnost, správnost a přesnost. Současně není oprávněna uzavírat jménem vlastníka nemovité věci jakékoliv smlouvy spojené s prodejem nemovitosti.

Nejčerstvější nabídky do Vašeho e-mailu

Lokalita
Parametry
Velikost
Min.
Max.
Cenové rozpětí
Cena min.
Cena max.
Cenové rozpětí
Cena min.
Cena max.