Informace

Byt, 3+kk

Nadstandardní, designově zařízený byt se saunou a střešní terasou s panoramatickými výhledy do okolní přírody je umístěn ve 4. podlaží domu v novém, urbanisticky zdařilém rezidenčním areálu stojícím na klidném místě u zámeckého parku ve městě Letovice obklopeném poli a hlubokými lesy. 

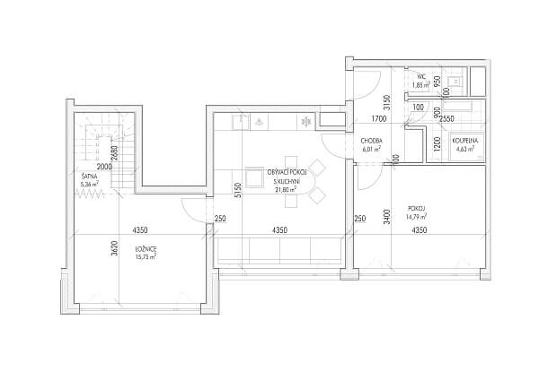
Dispozici západně orientovaného bytu tvoří obývací pokoj s kuchyní, hlavní ložnice se šatnou, druhá ložnice, koupelna, samostatná toaleta a vstupní chodba. V horní úrovni přístupné z hlavní ložnice se nachází sauna s prosklenou stěnou umožňující nádherný výhled

Bytový dům byl dokončen v r. 2020. Okna jsou hliníková s tepelně-izolačním zasklením a screenovým stíněním, vstupní dveře mají bezpečnostní kování, interiérové dveře bezfalcové. Všechny dveře mají nadstandardní výšku 2,1 m. Podlahy jsou dřevěné parketové (v dekoru kouřový dub) a s dlažbou, po celé ploše bytu je teplovodní podlahové vytápění. Kuchyňská linka i další zařízení bylo zhotoveno na míru, byt se prodává kompletně zařízený dle vyobrazených fotografií. Na terasu je možné umístit ochlazovací káď nebo vířivku. Rezidentům je k dispozici výtah a kočárkárna, k bytu přísluší 1 venkovní parkovací stání a velký sklep s přípojkou na pračku a sušičku (cca 11 m2). 

Projekt navazuje na stávající zástavbu, v pohodlném dosahu je tak veškerá infrastruktura. Mateřská a základní škola nebo prodejna potravin jsou asi 150 metrů od domu, blízko je do kavárny či restaurace, zámeckého parku nebo na dětské hřiště. Téměř u domu je autobusová zastávka, autem se lze snadno napojit na rychlostní silnici R43. Velkým benefitem Letovic je okolní příroda. Vedou zde cyklostezky i turistické trasy, blízko je také město Boskovice s nádherným historickým jádrem. 

Podlahová plocha 83 m2, terasa 60 m2, sklep 11 m2. 

Vybavení

  • Sklep

Půdorys

  • Půdorys 1
  • Půdorys 2

Přehledová tabulka

  • Referenční číslo
    102187
  • Cena celkem
    7 990 000 Kč / 328 536 €
  • Podlahová plocha *
    83 m²
  • Terasa
    60 m²
  • Celková plocha
    143 m²
  • Parkování
    Ano
  • Sklep
    11 m²
  • PENB
    C
* Výměra jednotky dle občanského zákoníku. Plocha je tvořena součtem celé plochy jednotky a ohraničená obvodovými zdmi.

Lokalita

Okolí nemovitosti

Kontaktujte nás

nepovinné
nepovinné

Podívejte se také na další byty v lokalitě

Veškeré zveřejněné údaje obsažené v tomto inzerátu mají pouze informativní charakter a nejsou nabídkou ve smyslu § 1731 nebo § 1732 občanského zákoníku, ani se nejedná o veřejný příslib dle § 1733 občanského zákoníku. Z této nabídky tak nikomu nevzniká nárok na uzavření smlouvy. Společnost SVOBODA & WILLIAMS s.r.o. zprostředkovává údaje (informace) nabyté v dobré víře od vlastníka nemovité věci a z tohoto důvodu nenese odpovědnost ze jejich úplnost, správnost a přesnost. Současně není oprávněna uzavírat jménem vlastníka nemovité věci jakékoliv smlouvy spojené s prodejem nemovitosti.

Nejčerstvější nabídky do Vašeho e-mailu

Lokalita
Parametry
Velikost
Min.
Max.
Cenové rozpětí
Cena min.
Cena max.
Cenové rozpětí
Cena min.
Cena max.