Informace

Ateliér 1+kk

Kompletně zrekonstruovaný ateliér se zasklenou terasou a vlastní předzahrádkou vznikl ve spolupráci s renomovaným architektonickým studiem SAD ve sníženém přízemí zrenovovaného funkcionalistického domu ze 30. let 20. století, který si plně zachoval svůj původní ráz, v tiché rezidenční lokalitě v blízkosti parku Lázara Cárdenase a Stromovky, s dobrou dostupností do centra.

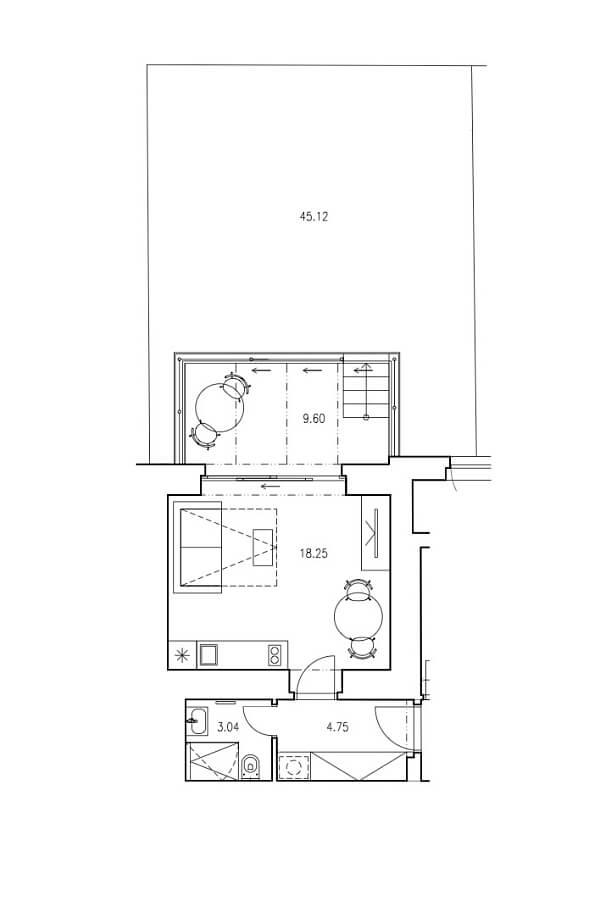
Dispozice jednotky nabízí vstupní chodbu s prostorem pro vestavěné skříně, hlavní obytnou místnost s kuchyňskou linkou a vstupem na zasklenou terasu (10 m2). K jednotce náleží také polovina předzahrádky, na kterou se vstupuje ze zasklené terasy.

Vybavení zahrnuje laminátové podlahy, plně vybavenou kuchyňskou linku, svítidla Nordlux, rekuperaci a elektrické podlahové topení.
Parkování v zóně pro rezidenty před domem nebo je možnost pronájmu garážového stání v okolí.

Dům se nachází v populární části Prahy 6 - Bubeneč, několik minut chůze od Královské obory Stromovka, parku pod Babou a zastávky MHD s rychlým spojením na metro Dejvická.

Podlahová plocha 26 m2, zasklená terasa 9,6 m2, zahrada 45,12 m2.

Půdorys

  • Půdorys 1

Přehledová tabulka

  • Referenční číslo
    102858
  • Prodejní cena
    Prodáno
  • Podlahová plocha *
    26 m²
  • Terasa
    9 m²
  • Celková plocha
    36 m²
  • Zahrada
    45 m²
  • Parkování
    -
  • Sklep
    -
  • PENB
    G
* Výměra jednotky dle občanského zákoníku. Plocha je tvořena součtem celé plochy jednotky a ohraničená obvodovými zdmi.

Lokalita

Okolí nemovitosti

Kontaktujte nás

nepovinné
nepovinné
Veškeré zveřejněné údaje obsažené v tomto inzerátu mají pouze informativní charakter a nejsou nabídkou ve smyslu § 1731 nebo § 1732 občanského zákoníku, ani se nejedná o veřejný příslib dle § 1733 občanského zákoníku. Z této nabídky tak nikomu nevzniká nárok na uzavření smlouvy. Společnost SVOBODA & WILLIAMS s.r.o. zprostředkovává údaje (informace) nabyté v dobré víře od vlastníka nemovité věci a z tohoto důvodu nenese odpovědnost ze jejich úplnost, správnost a přesnost. Současně není oprávněna uzavírat jménem vlastníka nemovité věci jakékoliv smlouvy spojené s prodejem nemovitosti.

Nejčerstvější nabídky do Vašeho e-mailu

Lokalita
Parametry
Velikost
Min.
Max.
Cenové rozpětí
Cena min.
Cena max.
Cenové rozpětí
Cena min.
Cena max.