Informace

Byt, 2+1

Nevšední byt s interiérem v industriálním stylu, zasklenou lodžií a výhledem do zeleně se nachází ve zvýšeném přízemí cihlového bytového domu stojícího v Praze 4 – Záběhlicích blízko Hamerského rybníka, v obytné čtvrti s kompletní infrastrukturou.  

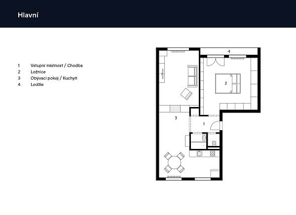
Současnou dispozici tvoří obývací pokoj, kuchyně, jídelna, ložnice, koupelna (se sprchovým koutem), samostatná toaleta a předsíň. Z jednoho pokoje vede vstup na lodžii. Původní dispozice byla 4+kk. 

Jednotka byla kompletně rekonstruována a vybavena před 2 lety, vše je po celou dobu nepoužité. Okna jsou plastová, vstupní dveře bezpečnostní, v koupelně a na toaletě je betonová stěrka, stropy jsou po celé ploše odhalené betonové. Vybavení zahrnuje kuchyňskou linku se spotřebiči a kovovou knihovnu na míru sloužící jako dělicí příčka mezi místnostmi. Vytápění je ústřední dálkové. K bytu přísluší sklep. Cihlový dům z r. 1965 s výtahem je udržovaný, připravuje se zateplení fasády. 

V pěším dosahu funguje supermarket, kavárna, pošta, poliklinika, lékárna, restaurace, kavárna, mateřská a základní škola i ZUŠ. Téměř u domu staví autobusy, kterými lze dojet ke stanicím metra Budějovická, Chodov, Roztyly, Smíchovské nádraží, Náměstí Míru i Florenc. Čtvrť zpříjemňuje spousta zeleně, blízko jsou sady u Toulcova dvoru, přírodní památka Meandry Botiče i rekreační oblast okolo Hamerského rybníka

Podlahová plocha 75,6 m2 (vč. sklepa 3,3 m2), lodžie 4,4 m2. 

Vybavení

  • Výtah
  • Sklep

Půdorys

  • Půdorys 1

Přehledová tabulka

  • Referenční číslo
    103752
  • Prodejní cena
    Prodáno
  • Podlahová plocha *
    75 m²
  • Lodžie
    4 m²
  • Celková plocha
    80 m²
  • Parkování
    -
  • Sklep
    Ano
  • PENB
    E
* Výměra jednotky dle bytového zákona. Plocha je tvořena součtem vnitřní výměry všech místností.

Lokalita

Okolí nemovitosti

Kontaktujte nás

nepovinné
nepovinné
Veškeré zveřejněné údaje obsažené v tomto inzerátu mají pouze informativní charakter a nejsou nabídkou ve smyslu § 1731 nebo § 1732 občanského zákoníku, ani se nejedná o veřejný příslib dle § 1733 občanského zákoníku. Z této nabídky tak nikomu nevzniká nárok na uzavření smlouvy. Společnost SVOBODA & WILLIAMS s.r.o. zprostředkovává údaje (informace) nabyté v dobré víře od vlastníka nemovité věci a z tohoto důvodu nenese odpovědnost ze jejich úplnost, správnost a přesnost. Současně není oprávněna uzavírat jménem vlastníka nemovité věci jakékoliv smlouvy spojené s prodejem nemovitosti.

Nejčerstvější nabídky do Vašeho e-mailu

Lokalita
Parametry
Velikost
Min.
Max.
Cenové rozpětí
Cena min.
Cena max.
Cenové rozpětí
Cena min.
Cena max.