Informace

Byt, 2+1

Tichý byt s výhledem do košaté koruny stromu ve vnitrobloku se nachází ve 3. podlaží elegantního bytového domu stojícího v boční jednosměrné ulici v centru u Rašínova nábřeží, v pěším dosahu oblíbené výtoňské náplavky.

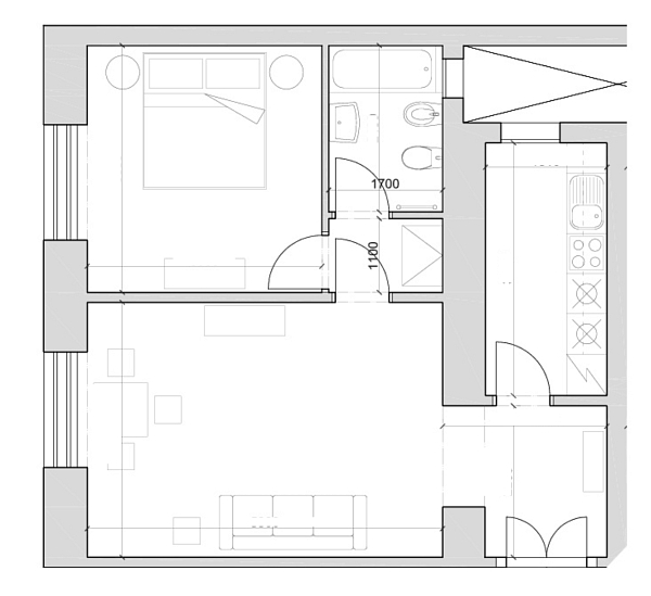
Dispoziční řešení nabízí obývací pokoj s jídelnou, kuchyni, ložnici, koupelnu (s vanou, WC a bidetem).

Byt i dům prošly v posledních letech kompletní rekonstrukcí respektující původní architektonický záměr. Dům má pěkné společné prostory a výtah (do mezipater), v bytě jsou 3,36 m vysoké stropy, dřevěné podlahy, v kuchyni a koupelně dlažba. Okna jsou nová dřevěná špaletová. Vytápění je řešeno novým plynovým kotlem. Kupní cena zahrnuje sklep a nábytek zobrazený na fotkách.

Boční jednosměrná ulice v centru na Novém Městě, jen pár kroků od tramvajových zastávek a stanice metra Karlovo náměstí, v blízkosti Tančícího domu nebo přístaviště. Pěšky je možné se dostat ke všemu potřebnému, navštěvovat lze farmářské trhy nebo posedět na náplavce v některé z restaurací či kaváren.

Podlahová plocha bytu dle aktuálního zaměření 51,3 m2 (v prohlášení vlastníka jednotka vedena jako 49,3 m2), sklep 2 m2.


Vybavení

  • Výtah
  • Sklep

Půdorys

  • Půdorys 1

Přehledová tabulka

  • Referenční číslo
    103859
  • Prodejní cena
    Prodáno
  • Poplatky za služby
    2 381 Kč měsíčně
  • Podlahová plocha *
    51 m²
  • Celková plocha
    51 m²
  • Světlá výška stropu
    3,36 m
  • Parkování
    -
  • Sklep
    2 m²
  • PENB
    G
* Výměra jednotky dle bytového zákona. Plocha je tvořena součtem vnitřní výměry všech místností.

Lokalita

Okolí nemovitosti

Kontaktujte nás

nepovinné
nepovinné
Veškeré zveřejněné údaje obsažené v tomto inzerátu mají pouze informativní charakter a nejsou nabídkou ve smyslu § 1731 nebo § 1732 občanského zákoníku, ani se nejedná o veřejný příslib dle § 1733 občanského zákoníku. Z této nabídky tak nikomu nevzniká nárok na uzavření smlouvy. Společnost SVOBODA & WILLIAMS s.r.o. zprostředkovává údaje (informace) nabyté v dobré víře od vlastníka nemovité věci a z tohoto důvodu nenese odpovědnost ze jejich úplnost, správnost a přesnost. Současně není oprávněna uzavírat jménem vlastníka nemovité věci jakékoliv smlouvy spojené s prodejem nemovitosti.

Nejčerstvější nabídky do Vašeho e-mailu

Lokalita
Parametry
Velikost
Min.
Max.
Cenové rozpětí
Cena min.
Cena max.
Cenové rozpětí
Cena min.
Cena max.