Informace

Byt, 3+kk

Nový byt s balkonem a vlastní fotovoltaickou elektrárnou je součástí právě vznikajícího udržitelného komorního rezidenčního projektu, který bude zasazen do klidné části oblíbeného horského střediska na pomezí Jizerských hor a Krkonoš. Středisko zachovávající si stále svůj původní ráz poskytuje nádhernou okolní přírodu, výborné gastropodniky i široké možnosti sportovního vyžití v každém ročním období. 

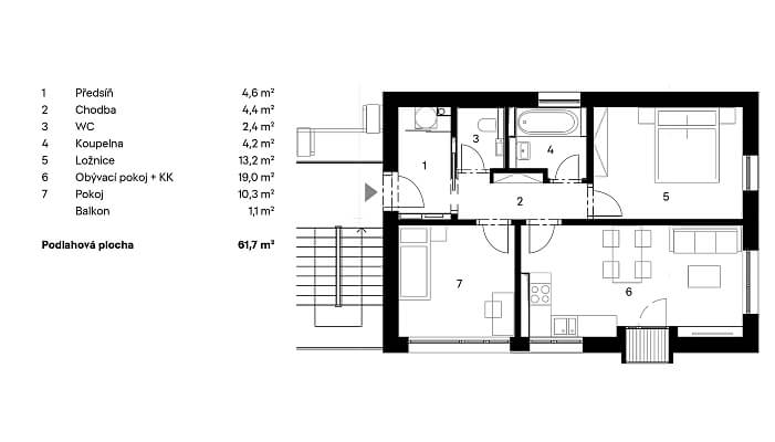
Účelné dispoziční uspořádání nabídne obývací pokoj se vstupem na balkon, přípravu na kuchyňský kout, dále 2 ložnice, koupelnu, samostatnou toaletu, chodbu a předsíň. 

Budova s obkladem z páleného dřeva bude první energeticky úspornou dřevostavbou v Harrachově. Vyšší standard ateliéru zahrnuje vstupní dveře s bezpečnostním zámkem, bezfalcové interiérové dveře VEKRA s výškou 210 cm (možnost výběru ze 4 dekorů), prémiové vinylové podlahy (výběr z 5 dekorů), velkoformátové obklady a dlažbu Ambienti, úsporné toalety SAT, další sanitu Laufen a Brevis, baterie Grohe, přípravu na zabezpečovací systém. Udržitelnost a nízké provozní náklady zajistí fotovoltaické panely, podlahové vytápění a chlazení tepelným čerpadlem vzduch-vzduch a plastová okna s izolačními trojskly. Součástí kupní ceny je sklep a garážové stání s přípravou na wallbox napojený na vlastní FVE, k sousedským setkáváním bude sloužit společná zahrada s grilem a posezením. K jednotce je nutné přikoupit sklep a parkovací stání.

Nedaleko od vznikajícího domu fungují kavárna nabízející teplé snídaně nebo oblíbená restaurace v tradiční horské chalupě, blízko je také sklářské muzeum a pivovar. K lanovce je možné dojet pohodlně skibusem, jehož zastávka je 5 minut od domu, velmi blízko se rozkládá nový polský sportovní areál Polana Jakuszycka, výchozí místo běžeckých tras napojených na Jizerskou magistrálu. Harrachov je výborně dostupný, cesta z Prahy zabere okolo hodiny a půl, využít lze i přímé autobusové spoje. 

Podlahová plocha 61,7 m2, balkon 1,1 m2.

Stavba bude zahájena do poloviny r. 2024.

Vybavení

  • Sklep
  • Garáž

Půdorys

  • Půdorys 1

Přehledová tabulka

  • Referenční číslo
    103998
  • Cena celkem
    9 883 946 Kč / 406 412 €
  • Podlahová plocha *
    61 m²
  • Balkon
    1 m²
  • Celková plocha
    62 m²
  • Parkování
    Za příplatek
  • Sklep
    Ano
  • PENB
    A
* Výměra jednotky dle bytového zákona. Plocha je tvořena součtem vnitřní výměry všech místností.

Kontaktujte nás

nepovinné
nepovinné

Podívejte se také na další byty v lokalitě

Veškeré zveřejněné údaje obsažené v tomto inzerátu mají pouze informativní charakter a nejsou nabídkou ve smyslu § 1731 nebo § 1732 občanského zákoníku, ani se nejedná o veřejný příslib dle § 1733 občanského zákoníku. Z této nabídky tak nikomu nevzniká nárok na uzavření smlouvy. Společnost SVOBODA & WILLIAMS s.r.o. zprostředkovává údaje (informace) nabyté v dobré víře od vlastníka nemovité věci a z tohoto důvodu nenese odpovědnost ze jejich úplnost, správnost a přesnost. Současně není oprávněna uzavírat jménem vlastníka nemovité věci jakékoliv smlouvy spojené s prodejem nemovitosti.

Nejčerstvější nabídky do Vašeho e-mailu

Lokalita
Parametry
Velikost
Min.
Max.
Cenové rozpětí
Cena min.
Cena max.
Cenové rozpětí
Cena min.
Cena max.