Informace

Byt, 3+kk

Byt s jižně orientovanou lodžií a dvěma garážovými místy se nachází v rezidenčním projektu z r. 2014, který se rozkládá na klidném místě ve Stodůlkách přímo u velkého lesoparku Vidoule. 

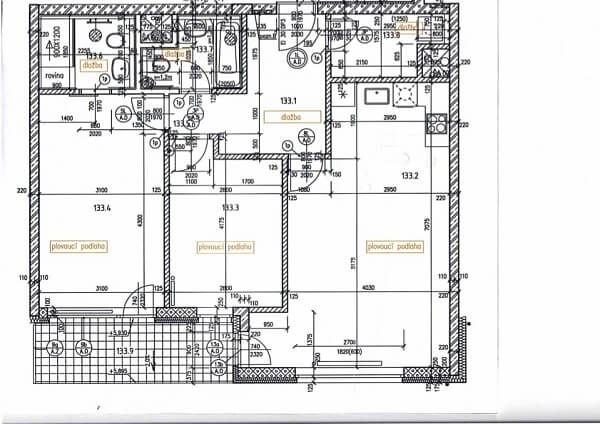
Praktickou dispozici bytu ve 3. podlaží tvoří obývací pokoj s kuchyňským a jídelním koutem, 2 ložnice, 2 koupelny (jedna s vanou a WC, druhá se sprchou a WC), předsíň a komora. Celý byt je orientovaný na jih do vnitrobloku, ze všech pokojů lze vstoupit na lodžii

Ke standardu patří plovoucí podlahy a eurookna s dvojskly a vnitřními žaluziemi, kuchyně s varným ostrůvkem je vybavena vestavnými spotřebiči a samostatně stojící chladničkou. Vytápění řeší centrální domovní kotelna. Kupní cena zahrnuje 2 garážová stání a sklep, vše přístupné výtahem

Lokalita je ideální pro rodiny s dětmi, přímo ve vnitrobloku je zatravněný pozemek s posezením, jen pár kroků vede do lesoparku, který je součástí rozlehlého přírodního parku Košíře-Motol. Blízko domu staví autobusy zajišťující rychlé spojení ke stanicím metra linek A a B, v krátké dojezdové vzdálenosti jsou mateřské a základní školy i Deutsche Schule Prag, supermarkety a velká nákupní zóna na Zličíně. 

Podlahová plocha 76,8 m2, lodžie 7,3 m2, sklep 1,9 m2

Vybavení

  • Výtah
  • Sklep
  • Garáž

Půdorys

  • Půdorys 1

Přehledová tabulka

  • Referenční číslo
    104141
  • Prodejní cena
    Prodáno
  • Poplatky za služby
    4 423 Kč měsíčně
  • Podlahová plocha *
    77 m²
  • Lodžie
    7 m²
  • Celková plocha
    84 m²
  • Parkování
    Dvě garážová stání
  • Sklep
    1 m²
  • PENB
    C
* Výměra jednotky dle občanského zákoníku. Plocha je tvořena součtem celé plochy jednotky a ohraničená obvodovými zdmi.

Lokalita

Okolí nemovitosti

Kontaktujte nás

nepovinné
nepovinné
Veškeré zveřejněné údaje obsažené v tomto inzerátu mají pouze informativní charakter a nejsou nabídkou ve smyslu § 1731 nebo § 1732 občanského zákoníku, ani se nejedná o veřejný příslib dle § 1733 občanského zákoníku. Z této nabídky tak nikomu nevzniká nárok na uzavření smlouvy. Společnost SVOBODA & WILLIAMS s.r.o. zprostředkovává údaje (informace) nabyté v dobré víře od vlastníka nemovité věci a z tohoto důvodu nenese odpovědnost ze jejich úplnost, správnost a přesnost. Současně není oprávněna uzavírat jménem vlastníka nemovité věci jakékoliv smlouvy spojené s prodejem nemovitosti.

Nejčerstvější nabídky do Vašeho e-mailu

Lokalita
Parametry
Velikost
Min.
Max.
Cenové rozpětí
Cena min.
Cena max.
Cenové rozpětí
Cena min.
Cena max.