Informace

Byt, 3+1

Rohový byt s prostornými pokoji, vysokými stropy a velkými špaletovými okny je umístěn ve 2. podlaží nárožního bytového domu stojícího v širším centru Prahy, na Vinohradech v těsné blízkosti náměstí Jiřího z Poděbrad. 

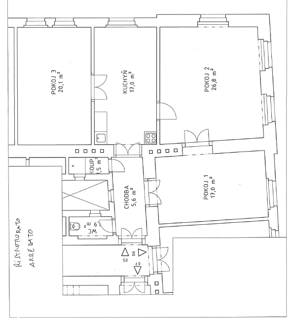
Současnou dispozici tvoří jihozápadně orientovaný rohový obývací pokoj, průchozí kuchyně, ložnice s en-suite koupelnou s vanou, druhá (průchozí) ložnice, koupelna se sprchovým koutem, toaleta a předsíň.

Interiér je vhodný k modernizaci. Velká špaletová okna propouštějí spoustu denního světla, klasický městský styl podtrhují stropy vysoké 3,35 m a parkety ve stromečkovém vzoru. Vytápění řeší plynový kotel. V domě je výtah

Místo se nachází v klidnější části Vinohrad, v jednosměrné ulici lemované stromořadím. V okolí fungují obchody, kavárny, restaurace i bistra, blízko se konají několikrát týdně farmářské trhy. Stanice metra a tramvajová zastávka jsou vzdálené asi 3 minuty chůze, cesta do centra trvá necelých 5 minut. Možnost úniku od ruchu města poskytují okolní parky, novou parkovou úpravu získává i náměstí Jiřího z Poděbrad, jehož dominantou je kostel od Josipa Plečnika

Podlahová plocha 92,6 m2

Vybavení

  • Výtah

Půdorys

  • Půdorys 1

Přehledová tabulka

  • Referenční číslo
    104533
  • Prodejní cena
    Prodáno
  • Podlahová plocha *
    93 m²
  • Celková plocha
    92 m²
  • Světlá výška stropu
    3,35 m
  • Parkování
    -
  • Sklep
    -
  • PENB
    E
* Výměra jednotky dle občanského zákoníku. Plocha je tvořena součtem celé plochy jednotky a ohraničená obvodovými zdmi.

Lokalita

Okolí nemovitosti

Kontaktujte nás

nepovinné
nepovinné
Veškeré zveřejněné údaje obsažené v tomto inzerátu mají pouze informativní charakter a nejsou nabídkou ve smyslu § 1731 nebo § 1732 občanského zákoníku, ani se nejedná o veřejný příslib dle § 1733 občanského zákoníku. Z této nabídky tak nikomu nevzniká nárok na uzavření smlouvy. Společnost SVOBODA & WILLIAMS s.r.o. zprostředkovává údaje (informace) nabyté v dobré víře od vlastníka nemovité věci a z tohoto důvodu nenese odpovědnost ze jejich úplnost, správnost a přesnost. Současně není oprávněna uzavírat jménem vlastníka nemovité věci jakékoliv smlouvy spojené s prodejem nemovitosti.

Nejčerstvější nabídky do Vašeho e-mailu

Lokalita
Parametry
Velikost
Min.
Max.
Cenové rozpětí
Cena min.
Cena max.
Cenové rozpětí
Cena min.
Cena max.