Informace

Byt, 2+kk

Moderní byt s terasou je umístěn v 6. podlaží rezidenčního projektu Vivus Osadní s výtahem, zeleným vnitroblokem a podzemní garáží, kde je k bytu vyhrazeno 1 parkovací stání. Rezidence byla dokončena v r. 2019 v oblíbené čtvrti Holešovice s živoucí atmosférou, všemi službami i snadným spojením do centra.  

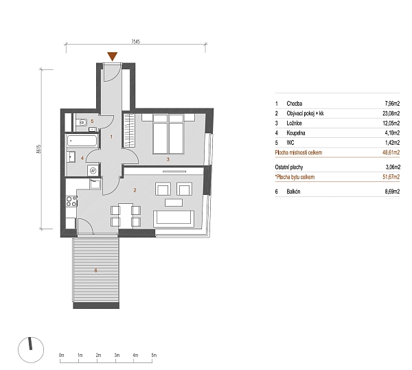
Plochu bytu tvoří obývací pokoj s kuchyňským koutem a vstupem na terasu, 1 ložnice, koupelna vanou a sprchovou zástěnou, samostatná toaleta a vstupní chodba.

Ke standardu patří dřevěné podlahy, velkoplošná plastová okna s dvojskly a vnitřními žaluziemi, centrální dálkové vytápění a bezpečnostní protipožární vstupní dveře. Kuchyně je plně vybavena vestavnými spotřebiči v bílé barvě. Kupní cena zahrnuje garážové stání a sklep, obyvatelům je k dispozici kočárkárna.

Blízko je do kaváren, restaurací, obchodů, lékáren či knihovny, multifunkčního centra Vnitroblock, Centra současného umění DOX i divadel La Fabrika a Jatka 78, nedaleko vznikne koncertní hala České filharmonie. Výbornou dostupnost zajišťují tramvajové spoje do centra i ke stanicím metra Nádraží Holešovice a Vltavská, v dosahu bude také zastávka rychlodráhy na letiště. Pro pěší a cyklisty slouží nová lávka do Karlína.

Podlahová plocha 51,7 m2, terasa 8,7 m2, sklep 7,5 m2.

Vybavení

  • Výtah
  • Sklep
  • Garáž

Půdorys

  • Půdorys 1

Přehledová tabulka

  • Referenční číslo
    104897
  • Prodejní cena
    Prodáno
  • Podlahová plocha *
    52 m²
  • Terasa
    8 m²
  • Celková plocha
    60 m²
  • Světlá výška stropu
    2,55 m
  • Parkování
    1 garážové stání
  • Sklep
    7 m²
  • PENB
    B
* Výměra jednotky dle občanského zákoníku. Plocha je tvořena součtem celé plochy jednotky a ohraničená obvodovými zdmi.

Lokalita

Okolí nemovitosti

Kontaktujte nás

nepovinné
nepovinné
Veškeré zveřejněné údaje obsažené v tomto inzerátu mají pouze informativní charakter a nejsou nabídkou ve smyslu § 1731 nebo § 1732 občanského zákoníku, ani se nejedná o veřejný příslib dle § 1733 občanského zákoníku. Z této nabídky tak nikomu nevzniká nárok na uzavření smlouvy. Společnost SVOBODA & WILLIAMS s.r.o. zprostředkovává údaje (informace) nabyté v dobré víře od vlastníka nemovité věci a z tohoto důvodu nenese odpovědnost ze jejich úplnost, správnost a přesnost. Současně není oprávněna uzavírat jménem vlastníka nemovité věci jakékoliv smlouvy spojené s prodejem nemovitosti.

Nejčerstvější nabídky do Vašeho e-mailu

Lokalita
Parametry
Velikost
Min.
Max.
Cenové rozpětí
Cena min.
Cena max.
Cenové rozpětí
Cena min.
Cena max.