Informace

Byt, 2+kk

Světlý byt je umístěný v 5. nadzemním podlaží plně zrekonstruovaného činžovního domu s proskleným výtahem, v blízkosti petřínské lanovky a se skvělou dostupností centra Prahy.

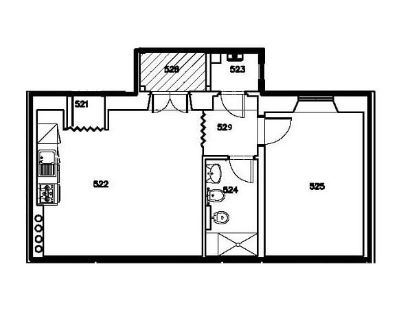
Hned po vstupu do bytu se otevírá prostor obývacího pokoje s balkonem a s plně vybavenou kuchňskou linkou. Na pokoj navazuje chodbička, ze které vedou dveře do komory s oknem, do koupelny a do ložnice orientované stejně jako balkon na východ do klidného vnitrobloku se zelení.

V bytě jsou dřevěná eurookna, plovoucí dřevěné podlahy, SDK podhledy a sádrová omítka. Koupelna je vybavena sprchovým koutem, bidetem a toaletou JIKA a podomítkovými bateriemi JIKA. Vytápění je radiátory Radik, kotel je plynový průtokový Immergas, který je ukryt v technické místnosti. Byt je nabízen včetně kompletního vybavení.

Oblíbená lokalita nedaleko Vltavy má výbornou dopravní dostupnost autem i městskou dopravou – v těsné blízkosti jsou autobusové a tramvajové zastávky, stanice metra Anděl (trasa B) je vzdálená 10 minut chůze. Parkování je před domem v zóně pro rezidenty. Snadné napojení na Pražský okruh, dálnici D5 směr Německo i směrem na letiště. V okolí je veškerá občanská vybavenost: obchody, restaurace, bary a kavárny, v docházkové vzdálenosti je Centrum Nový Smíchov. Procházky nabízí Petřínské sady přístupné lanovkou nebo Kampa s romantickou Čertovkou.

Podlahová plocha 44,2 m2, balkón 2,8 m2.

Vybavení

  • Výtah

Půdorys

  • Půdorys 1

Přehledová tabulka

  • Referenční číslo
    105954
  • Prodejní cena
    Prodáno
  • Podlahová plocha *
    44 m²
  • Balkon
    2 m²
  • Celková plocha
    47 m²
  • Parkování
    -
  • Sklep
    -
  • PENB
    D
* Výměra jednotky dle bytového zákona. Plocha je tvořena součtem vnitřní výměry všech místností.

Lokalita

Okolí nemovitosti

Kontaktujte nás

nepovinné
nepovinné
Veškeré zveřejněné údaje obsažené v tomto inzerátu mají pouze informativní charakter a nejsou nabídkou ve smyslu § 1731 nebo § 1732 občanského zákoníku, ani se nejedná o veřejný příslib dle § 1733 občanského zákoníku. Z této nabídky tak nikomu nevzniká nárok na uzavření smlouvy. Společnost SVOBODA & WILLIAMS s.r.o. zprostředkovává údaje (informace) nabyté v dobré víře od vlastníka nemovité věci a z tohoto důvodu nenese odpovědnost ze jejich úplnost, správnost a přesnost. Současně není oprávněna uzavírat jménem vlastníka nemovité věci jakékoliv smlouvy spojené s prodejem nemovitosti.

Nejčerstvější nabídky do Vašeho e-mailu

Lokalita
Parametry
Velikost
Min.
Max.
Cenové rozpětí
Cena min.
Cena max.
Cenové rozpětí
Cena min.
Cena max.