Informace

Byt, 2+kk

Kvalitně zrekonstruovaný byt s balkónem poskytujícím výhled do korun stromů je umístěn ve 2. podlaží plně zrenovovaného funkcionalistického domu s výtahem v oblíbené rezidenční oblasti na rozhraní Vinohrad a Vršovic.

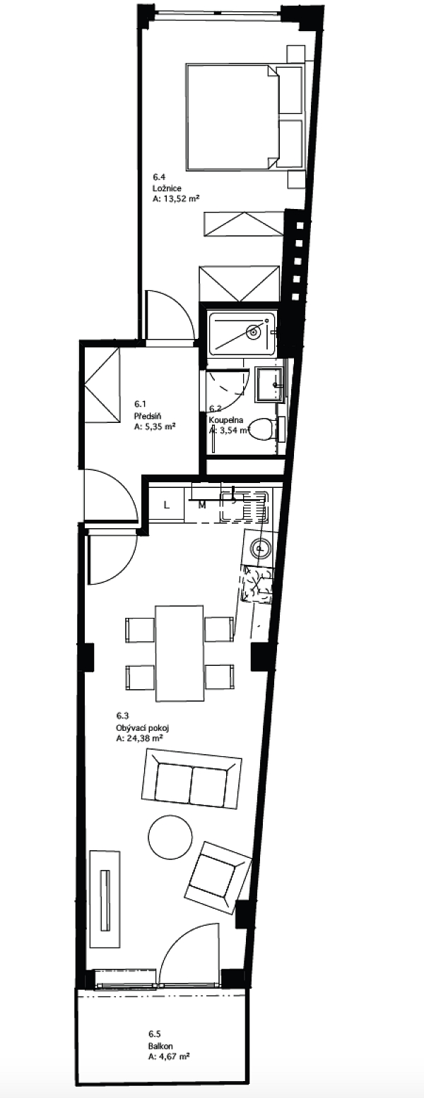
Dispozice bytu se skládá z obývacího pokoje s kuchyňským koutem, 1 ložnice, koupelny (sprchový kout, umyvadlo, WC) a předsíně. Na obývací pokoj navazuje jižně orientovaný balkón s výhledem do zeleně ve vnitrobloku.

Nákladná rekonstrukce celého domu proběhla v r. 2015. Podlahy v bytě jsou dřevěné stejně jako nová okna, vstupní dveře jsou bezpečnostní, vytápění centrální. Kuchyně na míru je kompletně vybavena a rozšířena o pracovní ostrůvek. K jednotce přísluší sklep, v podzemních garážích vzdálených 5 minut chůze od domu je možnost zakoupení parkovacího stání (1.450.000 Kč).

Lokalita v sousedství významné vinohradské vilové čtvrti vyniká množstvím bister a kaváren a širokými možnostmi kultury i sportu, v sousedním vnitrobloku se rozkládá veřejný park F. A Libry, další parky včetně Grébovky jsou v pěší vzdálenosti. Blízko domu staví autobus se spoji k přestupní stanici metra Florenc, 5 minut chůze je vzdálena tramvajová zastávka, odkud lze během chvilky dojet na náměstí Míru a dále do centra.

Podlahová plocha 46,79 m2, balkon 4,67 m2, sklep.

Vybavení

  • Výtah
  • Balkon
  • Sklep

Půdorys

  • Půdorys 1

Přehledová tabulka

  • Referenční číslo
    106427
  • Prodejní cena
    Prodáno
  • Podlahová plocha *
    46 m²
  • Balkon
    4 m²
  • Celková plocha
    51 m²
  • Parkování
    -
  • Sklep
    Ano
  • PENB
    C
* Výměra jednotky dle bytového zákona. Plocha je tvořena součtem vnitřní výměry všech místností.

Lokalita

Okolí nemovitosti

Kontaktujte nás

nepovinné
nepovinné
Veškeré zveřejněné údaje obsažené v tomto inzerátu mají pouze informativní charakter a nejsou nabídkou ve smyslu § 1731 nebo § 1732 občanského zákoníku, ani se nejedná o veřejný příslib dle § 1733 občanského zákoníku. Z této nabídky tak nikomu nevzniká nárok na uzavření smlouvy. Společnost SVOBODA & WILLIAMS s.r.o. zprostředkovává údaje (informace) nabyté v dobré víře od vlastníka nemovité věci a z tohoto důvodu nenese odpovědnost ze jejich úplnost, správnost a přesnost. Současně není oprávněna uzavírat jménem vlastníka nemovité věci jakékoliv smlouvy spojené s prodejem nemovitosti.

Nejčerstvější nabídky do Vašeho e-mailu

Lokalita
Parametry
Velikost
Min.
Max.
Cenové rozpětí
Cena min.
Cena max.
Cenové rozpětí
Cena min.
Cena max.