Informace

Byt, 2+kk

Byt s lodžií je součástí komorního bytového domu stojícího v tradiční rezidenční čtvrti Praha 10 – Strašnice s veškerou infrastrukturou i spoustou zeleně. 

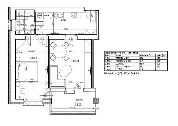
Dispozici bytu ve 2. patře tvoří vstupní chodba s přípravou pro kuchyňskou linku včetně přípojky pro pračku, obývací pokoj s lodžií, ložnice (také s přístupem na lodžii) a koupelna (sprchový kout, umyvadlo, WC).

Dům i byt aktuálně prochází rekonstrukcí. Ke standardu patří plastová okna s trojskly, olejovaná dubová podlaha, bezpečnostní protipožární vstupní dveře s hlukovou izolací, interiérové dveře obložkové, umyvadlo a toaleta, velkoformátové obklady a dlažba. Vytápění v celém bytě zajistí kondenzační plynový kotel. K bytu přísluší sklepní kóje, obyvatelům bude k dispozici společná zahrada. Cihlový dům z 20./30.let 20.století s 12 bytovými jednotkami je bez výtahu. Parkování možné v modré zóně před domem. 

Výhodná poloha v boční ulici nedaleko tramvajové zastávky Solidarita, cca 15 minut chůze od stanice metra Strašnická. V okolí fungují restaurace, pošta, obchody i lékařské služby, oblast zpříjemňuje spousta zelených ploch v zahradách a upravených parcích.  

Podlahová plocha 51,1 m2, lodžie 7,3 m2, sklepní kóje 2,6 m2

Dokončení v dubnu 2025. Vizualizace mají informativní charakter.

Vybavení

  • Lodžie
  • Sklep

Půdorys

  • Půdorys 1

Přehledová tabulka

  • Referenční číslo
    106833
  • Prodejní cena
    Prodáno
  • Podlahová plocha *
    51 m²
  • Lodžie
    7 m²
  • Celková plocha
    58 m²
  • Parkování
    -
  • Sklep
    Ano
  • PENB
    G
* Výměra jednotky dle občanského zákoníku. Plocha je tvořena součtem celé plochy jednotky a ohraničená obvodovými zdmi.

Kontaktujte nás

nepovinné
nepovinné
Veškeré zveřejněné údaje obsažené v tomto inzerátu mají pouze informativní charakter a nejsou nabídkou ve smyslu § 1731 nebo § 1732 občanského zákoníku, ani se nejedná o veřejný příslib dle § 1733 občanského zákoníku. Z této nabídky tak nikomu nevzniká nárok na uzavření smlouvy. Společnost SVOBODA & WILLIAMS s.r.o. zprostředkovává údaje (informace) nabyté v dobré víře od vlastníka nemovité věci a z tohoto důvodu nenese odpovědnost ze jejich úplnost, správnost a přesnost. Současně není oprávněna uzavírat jménem vlastníka nemovité věci jakékoliv smlouvy spojené s prodejem nemovitosti.

Nejčerstvější nabídky do Vašeho e-mailu

Lokalita
Parametry
Velikost
Min.
Max.
Cenové rozpětí
Cena min.
Cena max.
Cenové rozpětí
Cena min.
Cena max.