-
Byt 2+kk
-
Praha 2, Vinohrady, Koperníkova
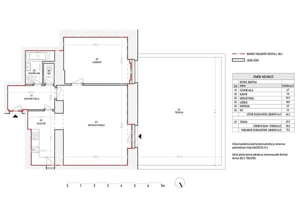
- Podlahová plocha
- 71 m²
- Terasa
- 49 m²
Dvoupokojový klimatizovaný byt s velkou terasou v atraktivní lokalitě Vinohrad v těsném sousedství Havlíčkových sadů. Významný funkcionalistický bytový komplex s výtahem nabízí typicky městské bydlení v rychlém dosahu všech služeb, hromadné dopravy i zeleně oblíbených parků.
Zařízený byt je díky svému umístění ve zvýšeném přízemí vhodný i pro rodiny s dětmi či seniory. Sestává z obývacího pokoje se vstupem na soukromou západně orientovanou terasu, dále samostatné kuchyně, ložnice, koupelny s vanou a předsíně. Bezproblémové parkování na modré zóně před domem.
Jednotka má velká špaletová okna, 3,5 m vysoké stropy, dřevěné parkety a plně vybavenou kuchyňskou linku. Teplo rozvádí přímotopy, v horkých dnech poslouží klimatizace. Ohřev vody vlastním bojlerem. Udržovaný funkcionalistický dům byl vystavěn ve 20. letech minulého století, má výtah a novou střechu (r. 2023).
Vinohrady patří mezi nejžádanější pražské čtvrti díky vynikající dostupnosti služeb, skvělé dopravní obslužnosti a pestrým kulturním i společenským možnostem. Přímo z ulice vede vstup do Havlíčkových sadů s vilou Grébovka, restaurací, kavárnou a dětským hřištěm. K nejbliží tramvajové zastávce lze dojít za 5 minut, stanice metra Náměstí Míru je vzdálená 1 km od domu.
Podlahová plocha 71,3 m2, terasa 49,9 m2.
V případě jakýchkoliv dotazů se na nás můžete kdykoliv obrátit. Náš tým se vám obratem ozve.