-
Byt 4+1
-
Praha 9, Libeň, Čihákova
- Podlahová plocha
- 86 m²
- Balkón
- 3 m²
Nově zrekonstruovaný čtyřpokojový byt se 2 balkony je umístěný ve 2. podlaží pěkně udržovaného cihlového domu s výtahem. Libeň představuje atraktivní čtvrť plnou kontrastů perfektně dostupnou metrem či tramvajemi. O2 Arena, Galerie Harfa, park Podviní, bobová dráha, lanové centrum či cyklostezka nabízejí široké možnosti aktivního vyžití.
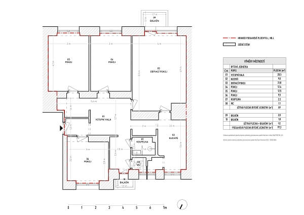
Bytovou jednotku tvoří obývací pokoj se vstupem na balkon, kuchyně (s přípravou pro kuchyňskou linku) se spíží, 3 ložnice (z toho 2 jsou orientované na jih), koupelna se sprchovým koutem, samostatná toaleta a chodba se 2. balkonem. Všechny pokoje jsou neprůchozí. Součástí kupní ceny je také sklep.
Byt má plastová okna, vinylové podlahy v dekoru parket jsou položeny ve tvaru stromečku. Teplo rozvádí po bytě radiátory napojené na centrální výměník. V domě ze 40. let minulého století, který je průběžně rekonstruován, je výtah a společná kolárna.
Specifická atmosféra Libně spojuje zapadlá vesnická zákoutí, industriální architekturu a prvorepublikové vily. Oblast je skvěle dostupná díky metru trasy B a tramvajovým linkám a nabízí bohaté možnosti pro vyznavače aktivního životního stylu – jen kousek od domu se nachází O2 Arena, nákupní centrum Galerie Harfa, velký park Podviní s lanovým centrem a bobovou dráhou, nebo sportovní hala či rugbyové hřiště. Pro milovníky přírody začíná 100 metrů od domu cyklostezka a naučná stezka podél Rokytky. Dostupné služby v okolí zahrnují také polikliniku, četné restaurace a kavárny, mateřskou a základní školu i gymnázium.
Podlahová plocha 89 m2, balkóny 3m2 a 1,8m2, sklep.
V případě jakýchkoliv dotazů se na nás můžete kdykoliv obrátit. Náš tým se vám obratem ozve.