Informace

Byt, 2+1

Bezbariérový jihozápadně orientovaný byt s výhledem do zeleně je umístěn v 6. podlaží dobře udržovaného panelového domu, který je součástí zástavby ze 70. let 20. století rozkládající se blízko Ďáblického háje, vchod do domu je pouhých 250 m od stanice metra Ládví, tramvajové i autobusové zastávky.

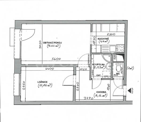
Přehlednou dispozici tvoří obývací pokoj s francouzským oknem, přilehlá kuchyně, 1 ložnice, koupelna (se sprchovým koutem), samostatná toaleta a předsíň s úložným prostorem.

Dům byl vystavěn v r. 1972, je dobře udržovaný, má moderní výtah a vchodové dveře se vstupem na čip, společné prostory jsou z důvodu bezpečí monitorovány, přístup až do bytu je zcela bezbariérový, dům i jeho okolí je velmi tiché. Interiér je v původním stavu, jádro je vyzděné, koupelna i WC novější stejně jako vchodové bezpečnostní dveře. Plastová okna mají vnitřní žaluzie, na podlahách je koberec nebo linoleum, v předsíni vestavěné skříně. Vytápění centrální dálkové. Součástí vybavení je internetová přípojka (včetně pevné linky). V chodbě domu je prostorná sdílená lodžie pro 3 byty na patře. 

V bezprostředním okolí fungují obchody včetně supermarketu, blízko je lékárna, poliklinika, pošta, restaurace i kavárny, mateřské a základní školy i zastávky MHD, pár kroků od domu koupaliště, krátkou procházkou lze dojít do Ďáblického háje. Autem je možné se rychle napojit na Libereckou ulici a dálnici D8. Čtvrť Kobylisy vyniká množstvím zeleně a díky své vyšší poloze na kopci i nejméně znečištěným vzduchem z celé Prahy. S ohledem na výhodnou polohu v těsné blízkosti metra je nabízený byt i vhodnou investiční příležitostí.

Podlahová plocha 43,29 m2.

Vybavení

  • Výtah
  • Bezbariérový přístup
  • Vstup na čip

Půdorys

  • Půdorys 1

Přehledová tabulka

  • Referenční číslo
    109256
  • Prodejní cena
    Prodáno
  • Podlahová plocha *
    43 m²
  • Celková plocha
    43 m²
  • Parkování
    -
  • Sklep
    -
  • PENB
    C
* Výměra jednotky dle bytového zákona. Plocha je tvořena součtem vnitřní výměry všech místností.

Lokalita

Okolí nemovitosti

Kontaktujte nás

nepovinné
nepovinné
Veškeré zveřejněné údaje obsažené v tomto inzerátu mají pouze informativní charakter a nejsou nabídkou ve smyslu § 1731 nebo § 1732 občanského zákoníku, ani se nejedná o veřejný příslib dle § 1733 občanského zákoníku. Z této nabídky tak nikomu nevzniká nárok na uzavření smlouvy. Společnost SVOBODA & WILLIAMS s.r.o. zprostředkovává údaje (informace) nabyté v dobré víře od vlastníka nemovité věci a z tohoto důvodu nenese odpovědnost ze jejich úplnost, správnost a přesnost. Současně není oprávněna uzavírat jménem vlastníka nemovité věci jakékoliv smlouvy spojené s prodejem nemovitosti.

Nejčerstvější nabídky do Vašeho e-mailu

Lokalita
Parametry
Velikost
Min.
Max.
Cenové rozpětí
Cena min.
Cena max.
Cenové rozpětí
Cena min.
Cena max.