Informace

Byt, 2+1

Ve 4. podlaží bytového domu s výtahem na Žižkově, v rychlém dosahu všech služeb, parků i sportovního areálu Pražačka, se nachází světlý částečně zařízený dvoupokojový byt s balkónem. Cena zahrnuje také prostorný sklep a podíl na dvou nebytových prostorech, které přinášejí pravidelný výnos.

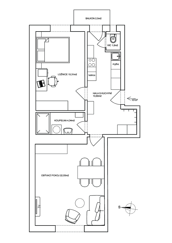
Bytová jednotka se skládá ze vstupní haly s kuchyní a balkónem orientovaným do vnitrobloku, 2 pokojů, koupelny se sprchovým koutem a samostatné toalety. K bytu náleží prostorný sklep umístěný v suterénu a přístupný výtahem, součástí prodeje je i podíl na nebytových jednotkách v přízemí domu s pravidelným ročním výnosem přibližně 45 000 Kč. Bezproblémové parkování na zónách v okolí domu.

Byt prošel v letech 2018 - 2023 kompletní rekonstrukcí, která zahrnovala výměnu skladby podlah, povrchů, nové sádrokartonové podhledy, nové interiérové dveře z masivního dřeva či bezpečnostní vstupní dveře. Okna jsou plastová, podlahy v pokojích plovoucí. Vytápění je řešeno vlastním kondenzačním plynovým kotlem se zásobníkem. Ve 4Q 2025 proběhne v budově celková revitalizace sklepních prostor a kójí.

Žižkov je čtvrť s osobitým charakterem a živou atmosférou, která nabízí i množství zelených ploch a aktivit pro všechny generace. Vše potřebné je doslova na dosah – obchody, úřady, restaurace, kavárny i zdravotnická zařízení. Na procházku či běh láká blízký vrch Vítkov nebo park Židovské pece, po cyklostezce se lze vydat tunelem do Karlína nebo na opačnou stranu do Vysočan. Díky tramvajovým linkám z blízké zastávky Strážní je centrum města snadno dostupné.

Podlahová plocha 56,4 m2, balkón 2 m2, sklep 10,6 m2.

Vybavení

  • Výtah
  • Balkon
  • Sklep

Půdorys

  • Půdorys 1

Přehledová tabulka

  • Referenční číslo
    110245
  • Prodejní cena
    Prodáno
  • Podlahová plocha *
    56 m²
  • Balkon
    2 m²
  • Celková plocha
    58 m²
  • Parkování
    -
  • Sklep
    10 m²
  • PENB
    E
* Výměra jednotky dle bytového zákona. Plocha je tvořena součtem vnitřní výměry všech místností.

Lokalita

Okolí nemovitosti

Kontaktujte nás

nepovinné
nepovinné
Veškeré zveřejněné údaje obsažené v tomto inzerátu mají pouze informativní charakter a nejsou nabídkou ve smyslu § 1731 nebo § 1732 občanského zákoníku, ani se nejedná o veřejný příslib dle § 1733 občanského zákoníku. Z této nabídky tak nikomu nevzniká nárok na uzavření smlouvy. Společnost SVOBODA & WILLIAMS s.r.o. zprostředkovává údaje (informace) nabyté v dobré víře od vlastníka nemovité věci a z tohoto důvodu nenese odpovědnost ze jejich úplnost, správnost a přesnost. Současně není oprávněna uzavírat jménem vlastníka nemovité věci jakékoliv smlouvy spojené s prodejem nemovitosti.

Nejčerstvější nabídky do Vašeho e-mailu

Lokalita
Parametry
Velikost
Min.
Max.
Cenové rozpětí
Cena min.
Cena max.
Cenové rozpětí
Cena min.
Cena max.