Informace

Byt, 3+1

Prostorný třípokojový byt je umístěný v nejvyšším patře zrekonstruovaného činžovního domu z roku 1902 s výtahem, situovaného v atraktivní části Bubenče, pod Letnou. V docházkové vzdálenosti se nachází park Stromovka, oblíbené místo pro procházky, sport i kulturní akce, dále školy všech stupňů, široká nabídka obchodů či tramvajová zastávka s rychlým spojením do centra.

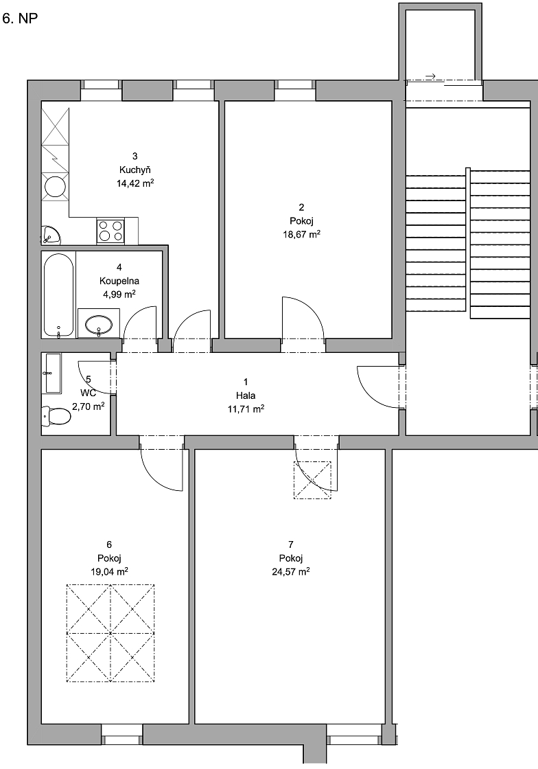
Bytovou jednotku tvoří samostatná kuchyň, kterou lze propojit se sousedním pokojem, přičemž obě místnosti jsou orientovány na jih do vnitrobloku, 2 pokoje, koupelna s vanou a umyvadlem, samostatná toaleta a vstupní hala.

Bytová jednotka byla dokončena v r. 2005 současně s celkovou rekonstrukcí budovy a průběžně byla renovována. Pouze okna jsou ve stavu před výměnou, v rámci SVJ je již schválený rozpočet na jejich obnovu. Podlahy jsou řešeny kombinací vinylu a keramické dlažby. Součástí vybavení je kompletně zařízená kuchyňská linka a plynový kotel sloužící k vytápění.

Letná kombinuje atmosféru původní historické zástavby, rozmanité gastro scény, vzdělávacích institucí i pestrého komunitního života. Z místa lze navíc pohodlně dojít pěšky až k Pražskému hradu, do Starého Města i na Malou Stranu. Společenské a kulturní vyžití zde nabízí kultovní kino Bio Oko, Národní galerie ve Veletržním paláci, Národní technické muzeum, Letenské sady nebo řada podniků lemujících ulici Milady Horákové a její okolí. Výborné dopravní spojení MHD zajišťují tramvaje a autobusy, cestování autem usnadňuje nedaleký nájezd do tunelového komplexu.

Podlahová plocha 97,01 m2.

Vybavení

  • Výtah
  • Sklep

Půdorys

  • Půdorys 1

Přehledová tabulka

  • Referenční číslo
    110982
  • Prodejní cena
    Prodáno
  • Podlahová plocha *
    97 m²
  • Celková plocha
    97 m²
  • Parkování
    -
  • Sklep
    Ano
  • PENB
    G
* Výměra jednotky dle bytového zákona. Plocha je tvořena součtem vnitřní výměry všech místností.

Lokalita

Okolí nemovitosti

Kontaktujte nás

nepovinné
nepovinné
Veškeré zveřejněné údaje obsažené v tomto inzerátu mají pouze informativní charakter a nejsou nabídkou ve smyslu § 1731 nebo § 1732 občanského zákoníku, ani se nejedná o veřejný příslib dle § 1733 občanského zákoníku. Z této nabídky tak nikomu nevzniká nárok na uzavření smlouvy. Společnost SVOBODA & WILLIAMS s.r.o. zprostředkovává údaje (informace) nabyté v dobré víře od vlastníka nemovité věci a z tohoto důvodu nenese odpovědnost ze jejich úplnost, správnost a přesnost. Současně není oprávněna uzavírat jménem vlastníka nemovité věci jakékoliv smlouvy spojené s prodejem nemovitosti.

Nejčerstvější nabídky do Vašeho e-mailu

Lokalita
Parametry
Velikost
Min.
Max.
Cenové rozpětí
Cena min.
Cena max.
Cenové rozpětí
Cena min.
Cena max.