Informace

Byt, 4+kk

Velkoryse pojatý čtyřpokojový byt s lodžií, parkovacím místem a nerušeným výhledem na protější svahy se nachází v 8. nadzemním podlaží moderního projektu Rezidence Zahálka s veřejně přístupným parkem, přilehlým golfovým hřištěm, cyklostezkou podél Vltavy a občanskou vybaveností v Modřanech.

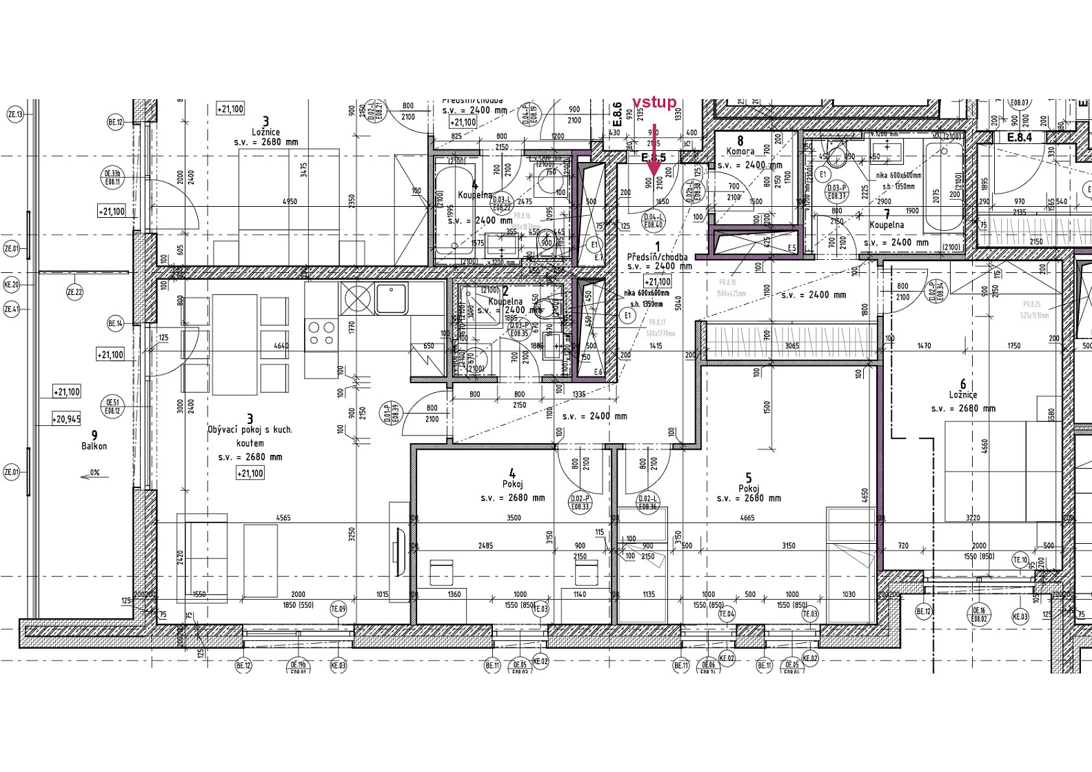
Plocha bytu je rozdělena na obývací pokoj s kuchyní a vstupem na prostornou lodžii, 2 velké ložnice s vestavěnými skříněmi, pracovnu/ložnici pro hosty, en-suite koupelnu (sprcha, umyvadlo, WC), 2. koupelnu (sprcha, WC, pračka a sušička), komoru a vstupní chodbu se šatní skříní. Součástí ceny je garážové stání a sklep.

V bytě jsou dřevěná eurookna, třívrstvé dubové podlahy a bezpečnostní vstupní dveře. Vybavení zahrnuje kuchyňskou linku se spotřebiči BOSCH a vestavěný nábytek. Topení je řešeno centrální plynovou kotelnou, nechybí systém nuceného větrání s rekuperací tepla. Rezidenční areál Zahálka představuje nadčasové rodinné bydlení s promyšlenými společnými i venkovními prostory, jejichž součástí je dětské hřiště, park a komunitní zahrada. 

Lokalita na rozhraní Hodkoviček a Modřan prošla v posledních letech rozsáhlou revitalizací a proměnila se v moderní čtvrť s kompletní občanskou vybaveností. Přímo v areálu se nachází supermarket, fitness centrum, restaurace i bistro. V okolí je k dispozici freestyle park, lanové centrum, tenisové kurty, in-line dráha a cyklostezka, po které lze dojet na náplavku na Výtoni za 20 minut nebo do centra města přibližně za 25 minut. Tramvajová zastávka s častými spoji do centra je vzdálena pouhých 8 minut chůze.

Byt je aktuálně pronajatý s nájemní smlouvou platnou do 31.3.2026.

Podlahová plocha 113,7 m2, lodžie 10 m2, sklep 5 m2.

Vybavení

  • Výtah
  • Bezbariérový přístup
  • Rekuperace
  • Parkování
  • Lodžie
  • Sklep
  • Garáž
  • Komora

Půdorys

  • Půdorys 1

Přehledová tabulka

  • Referenční číslo
    111195
  • Cena celkem
    20 990 000 Kč / 863 076 €
  • Podlahová plocha *
    114 m²
  • Lodžie
    10 m²
  • Celková plocha
    123 m²
  • Parkování
    Parkovací stání
  • Sklep
    5 m²
  • PENB
    B
* Výměra jednotky dle občanského zákoníku. Plocha je tvořena součtem celé plochy jednotky a ohraničená obvodovými zdmi.

Lokalita

Okolí nemovitosti

Kontaktujte nás

nepovinné
nepovinné

Podívejte se také na další byty v lokalitě

Veškeré zveřejněné údaje obsažené v tomto inzerátu mají pouze informativní charakter a nejsou nabídkou ve smyslu § 1731 nebo § 1732 občanského zákoníku, ani se nejedná o veřejný příslib dle § 1733 občanského zákoníku. Z této nabídky tak nikomu nevzniká nárok na uzavření smlouvy. Společnost SVOBODA & WILLIAMS s.r.o. zprostředkovává údaje (informace) nabyté v dobré víře od vlastníka nemovité věci a z tohoto důvodu nenese odpovědnost ze jejich úplnost, správnost a přesnost. Současně není oprávněna uzavírat jménem vlastníka nemovité věci jakékoliv smlouvy spojené s prodejem nemovitosti.

Nejčerstvější nabídky do Vašeho e-mailu

Lokalita
Parametry
Velikost
Min.
Max.
Cenové rozpětí
Cena min.
Cena max.
Cenové rozpětí
Cena min.
Cena max.