Informace

Byt, 2+kk

Zrenovovaný dvoupokojový byt s příjemnou východní orientací se nachází ve 2. nadzemním podlaží vinohradského činžovního domu s výtahem a společným zeleným dvorem. Dům stojí v klidné ulici vedoucí k parku Grébovka a nabízí výbornou dostupnost do centra Prahy.

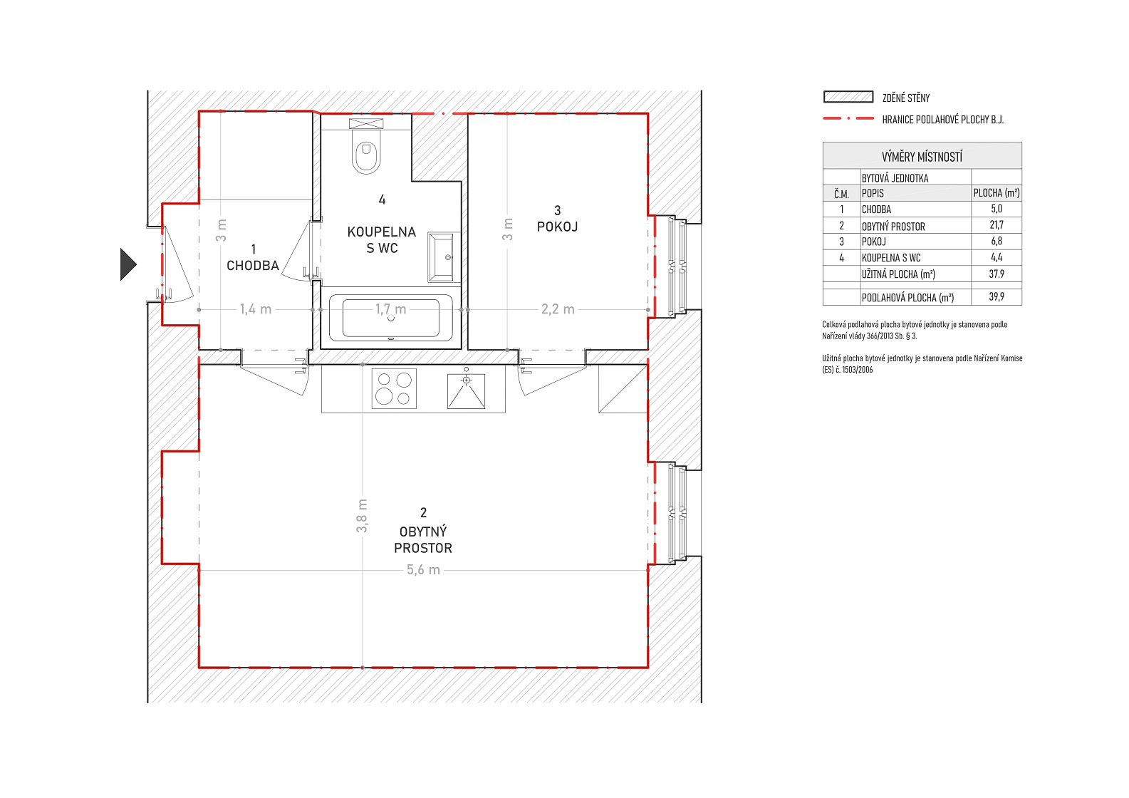
Dispoziční uspořádání zahrnuje předsíň se vstupem do šatny, obývací pokoj s kuchyní, ložnici a prostornou koupelnu, kde je umístěna vana, toaleta, umyvadlo a přípojka pro pračku.

Okna jsou dřevěná špaletová, součástí vybavení jsou dřevěné podlahy, interiérové dveře a kuchyňská linka zařízená vestavěnými spotřebiči. Vytápění je zajištěno centrálně. K bytu patří sklepní kóje a možnost využití společného dvora se vzrostlou zelení ve vnitrobloku.

Prestižní část Vinohrad poskytuje kompletní občanskou vybavenost včetně pestré nabídky restaurací, bister, kaváren i kulturního a společenského vyžití. Skvělou dopravní dostupnost zajišťují tramvaje se zastávkou v sousední ulici, ke stanici metra Náměstí Míru je možné dojít pěšky přibližně za 10 minut. Okolí tvoří upravené, stromy lemované ulice a městské parky jako Bezručovy sady nebo Grébovka (Havlíčkovy sady) inspirovaná italskou renesancí s dětským hřištěm, kavárnou, vinárnou a venkovními sportovišti.

Podlahová plocha 39.9 m2, sklep 1,7 m2.

Vybavení

  • Výtah
  • Sklep

Půdorys

  • Půdorys 1

Přehledová tabulka

  • Referenční číslo
    111904
  • Cena celkem
    10 500 000 Kč / 431 211 €
  • Podlahová plocha *
    40 m²
  • Celková plocha
    39 m²
  • Světlá výška stropu
    3,50 m
  • Parkování
    -
  • Sklep
    1 m²
  • PENB
    G
* Výměra jednotky dle občanského zákoníku. Plocha je tvořena součtem celé plochy jednotky a ohraničená obvodovými zdmi.

Lokalita

Okolí nemovitosti

Kontaktujte nás

nepovinné
nepovinné

Podívejte se také na další byty v lokalitě

Veškeré zveřejněné údaje obsažené v tomto inzerátu mají pouze informativní charakter a nejsou nabídkou ve smyslu § 1731 nebo § 1732 občanského zákoníku, ani se nejedná o veřejný příslib dle § 1733 občanského zákoníku. Z této nabídky tak nikomu nevzniká nárok na uzavření smlouvy. Společnost SVOBODA & WILLIAMS s.r.o. zprostředkovává údaje (informace) nabyté v dobré víře od vlastníka nemovité věci a z tohoto důvodu nenese odpovědnost ze jejich úplnost, správnost a přesnost. Současně není oprávněna uzavírat jménem vlastníka nemovité věci jakékoliv smlouvy spojené s prodejem nemovitosti.

Nejčerstvější nabídky do Vašeho e-mailu

Lokalita
Parametry
Velikost
Min.
Max.
Cenové rozpětí
Cena min.
Cena max.
Cenové rozpětí
Cena min.
Cena max.