Informace

Byt, 3+kk

Moderní byt s terasou, zahradou o ploše 200 m2 a garážovým stáním v prestižní rezidenční lokalitě Troji situovaný v přízemí menšího rezidenčního projektu s výbornou dopravní dostupností do centra města.

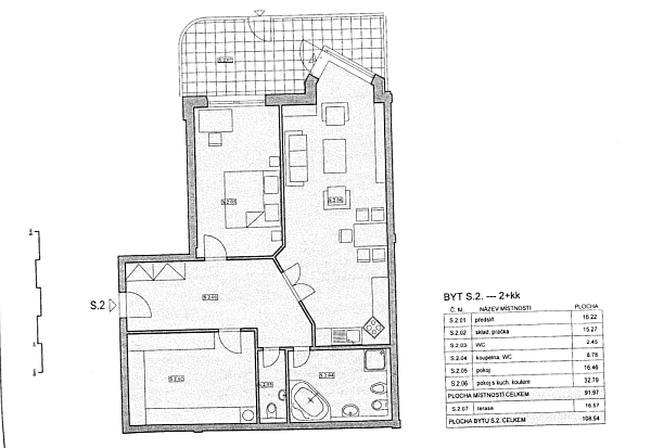
Byt nabízí obývací pokoj s kuchyňským koutem s přímým vstupem na terasu a na zahradu, ložnici, prostornou vstupní halu a koupelnu, komoru a velkou šatnu /15 m2/ v současnosti využívanou jako rodičovskou ložnici. K bytu dále patří samostatná zahrada ve svahu přístupná přes společnou zahradu, na které je možnost vybudovat zahradní domek s výhledem na Prahu. K bytu náleží sklep a jedno parkovací stání.

Interiér 91,97 m2, terasa 16,57 m2, soukromá zahrada 200 m2.

Vybavení

  • Sklep
  • Garáž

Půdorys

  • Půdorys 1

Přehledová tabulka

  • Referenční číslo
    13867
  • Prodejní cena
    Prodáno
  • Podlahová plocha *
    93 m²
  • Terasa
    16 m²
  • Celková plocha
    109 m²
  • Parkování
    Garážové stání zahrnuto v kupní ceně.
  • Sklep
    Ano
  • PENB
    G
* Výměra jednotky dle občanského zákoníku. Plocha je tvořena součtem celé plochy jednotky a ohraničená obvodovými zdmi.

Lokalita

Okolí nemovitosti

Kontaktujte nás

nepovinné
nepovinné
Veškeré zveřejněné údaje obsažené v tomto inzerátu mají pouze informativní charakter a nejsou nabídkou ve smyslu § 1731 nebo § 1732 občanského zákoníku, ani se nejedná o veřejný příslib dle § 1733 občanského zákoníku. Z této nabídky tak nikomu nevzniká nárok na uzavření smlouvy. Společnost SVOBODA & WILLIAMS s.r.o. zprostředkovává údaje (informace) nabyté v dobré víře od vlastníka nemovité věci a z tohoto důvodu nenese odpovědnost ze jejich úplnost, správnost a přesnost. Současně není oprávněna uzavírat jménem vlastníka nemovité věci jakékoliv smlouvy spojené s prodejem nemovitosti.

Nejčerstvější nabídky do Vašeho e-mailu

Lokalita
Parametry
Velikost
Min.
Max.
Cenové rozpětí
Cena min.
Cena max.
Cenové rozpětí
Cena min.
Cena max.