Informace

Byt, 3+kk

Velmi dobře dispozičně řešený byt 3+kk k prodeji s lodžií a zimní zahradou v 2.podlaží novostavby z roku 2006, který se nachází v blízkosti Baby a Šáreckého údolí.

Snadná dostupnost do centra, pár minut chůze k zastávkám tramvaje. Byt sestává z prostorného obývacího pokoje s plně vybaveným kuchyňským koutem a přístupem do zimní zahrady a na lodžie, dvou ložnic, koupelny a samostatné toalety. Dostatek úložných prostor, vestavěné skříně v obou ložnicích a vstupní hale, dřevěná okna, dřevěné plovoucí podlahy a dlažba, nábytek na míru, videotelefon, trezor, bezpečnostní vstupní dveře. Parkovací místo v podzemních garážích a velmi prostorná sklepní kóje jsou zahrnuty v ceně bytu. Veškerá občanská vybavenost v místě – obchody, restaurace, sportovní vyžití, parky, cyklostezka, tramvaj, bus. Interiér 82,50 m2, lodžie 10 m2, zimní zahrada 1,9 m2.

Vybavení

  • Sklep
  • Garáž

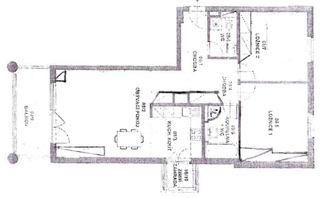
Půdorys

  • Půdorys 1

Přehledová tabulka

  • Referenční číslo
    15807
  • Prodejní cena
    Prodáno
  • Podlahová plocha *
    84 m²
  • Lodžie
    10 m²
  • Celková plocha
    94 m²
  • Parkování
    Ano
  • Sklep
    Ano
  • PENB
    G
* Výměra jednotky dle občanského zákoníku. Plocha je tvořena součtem celé plochy jednotky a ohraničená obvodovými zdmi.

Lokalita

Okolí nemovitosti

Kontaktujte nás

nepovinné
nepovinné
Veškeré zveřejněné údaje obsažené v tomto inzerátu mají pouze informativní charakter a nejsou nabídkou ve smyslu § 1731 nebo § 1732 občanského zákoníku, ani se nejedná o veřejný příslib dle § 1733 občanského zákoníku. Z této nabídky tak nikomu nevzniká nárok na uzavření smlouvy. Společnost SVOBODA & WILLIAMS s.r.o. zprostředkovává údaje (informace) nabyté v dobré víře od vlastníka nemovité věci a z tohoto důvodu nenese odpovědnost ze jejich úplnost, správnost a přesnost. Současně není oprávněna uzavírat jménem vlastníka nemovité věci jakékoliv smlouvy spojené s prodejem nemovitosti.

Nejčerstvější nabídky do Vašeho e-mailu

Lokalita
Parametry
Velikost
Min.
Max.
Cenové rozpětí
Cena min.
Cena max.
Cenové rozpětí
Cena min.
Cena max.