Prodej
-
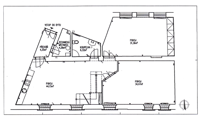
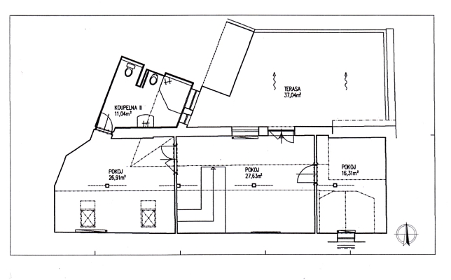
Byt 5+kk
-
Praha 6, Břevnov, Heleny Malířové
Prodáno
- Podlahová plocha
- 211 m²
- Terasa
- 37 m²























