Prodej
-
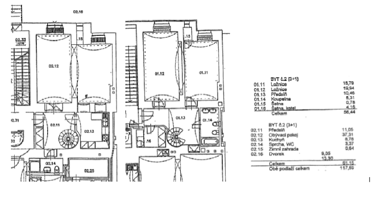
Byt 3+kk
-
Praha 2, Vinohrady, Mánesova
Prodáno
- Podlahová plocha
- 118 m²
- Terasa
- 13 m²






















