Informace

Byt, 2+kk

Designový byt řešený v režii renomovaného interiérového studia Donlic, situovaný ve 2. patře nově zrekonstruovaného klasického činžovního domu s výtahem.

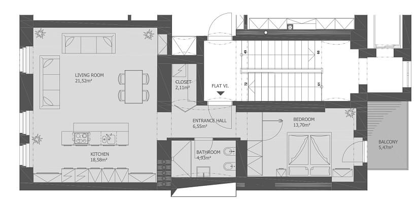
Dispozice bytu nabízí velmi prostorný obývací pokoj s plně vybaveným kuchyňským koutem, ložnici s vestavěnou skříní, stylová koupelna se sprchovým koutem a šatna. Nábytek na míru, dřevěné podlahy, francouzské okno, zabudovaná stropní svítidla, alarm s možností napojení na PCO. K dispozici terasa orientovaná do upraveného vnitrobloku. 2 minuty chůze k zastávce tramvaje, pouze 5 minut jízdy do centra, v pěší vzdálenosti od Vítkova. Interiér 68 m2, terasa 4 m2.

Půdorys

  • Půdorys 1

Přehledová tabulka

  • Referenční číslo
    16761
  • Prodejní cena
    Prodáno
  • Podlahová plocha *
    68 m²
  • Terasa
    4 m²
  • Celková plocha
    72 m²
  • Parkování
    -
  • Sklep
    -
  • PENB
    G
* Výměra jednotky dle občanského zákoníku. Plocha je tvořena součtem celé plochy jednotky a ohraničená obvodovými zdmi.

Lokalita

Okolí nemovitosti

Kontaktujte nás

nepovinné
nepovinné
Veškeré zveřejněné údaje obsažené v tomto inzerátu mají pouze informativní charakter a nejsou nabídkou ve smyslu § 1731 nebo § 1732 občanského zákoníku, ani se nejedná o veřejný příslib dle § 1733 občanského zákoníku. Z této nabídky tak nikomu nevzniká nárok na uzavření smlouvy. Společnost SVOBODA & WILLIAMS s.r.o. zprostředkovává údaje (informace) nabyté v dobré víře od vlastníka nemovité věci a z tohoto důvodu nenese odpovědnost ze jejich úplnost, správnost a přesnost. Současně není oprávněna uzavírat jménem vlastníka nemovité věci jakékoliv smlouvy spojené s prodejem nemovitosti.

Nejčerstvější nabídky do Vašeho e-mailu

Lokalita
Parametry
Velikost
Min.
Max.
Cenové rozpětí
Cena min.
Cena max.
Cenové rozpětí
Cena min.
Cena max.