Prodej
-
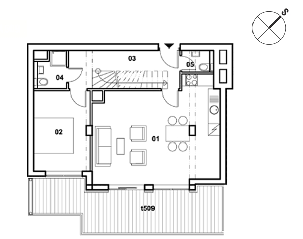
Byt 4+kk
-
Praha 8, Kobylisy, Ke Stírce
Prodáno
- Podlahová plocha
- 106 m²
- Terasa
- 56 m²























