Informace

Byt, 2+kk

Byt s balkonem ve 12. nadzemním podlaží (budova A) nového rezidenčního objektu, v sousedství Centrálního parku, v pěší vzdálenosti od stanice metra Hůrka.

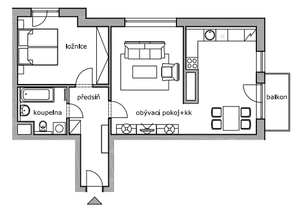
Byt nabízí vstupní halu, obývací pokoj s jídelním prostorem a otevřenou kuchyní, ložnici a koupelnu. Vybavení zahrnuje plovoucí podlahy, dlažbu, zařízenou koupelnu, deskové radiátory, přípravu pro kuchyňskou linku, bezpečnostní vstupní dveře, sklep. K bytu náleží 1 garážové stání za příplatek 60 500 Kč včetně DPH. Interiér 65,29 m2, balkon 3,14 m2, sklep 4,23 m2. Mateřská a základní škola vzdálena 200 m, obchodní dům Kaufland 3 minuty chůze.

V projektu celkem 117 bytů v dispozicích 1kk až 3kk. Ceník a kompletní informace na vyžádání u makléře.

Vybavení

  • Sklep

Půdorys

  • Půdorys 1
  • Půdorys 2

Přehledová tabulka

  • Referenční číslo
    17298
  • Prodejní cena
    Prodáno
  • Podlahová plocha *
    65 m²
  • Balkon
    3 m²
  • Celková plocha
    68 m²
  • Parkování
    Za příplatek 60 500 Kč
  • Sklep
    Ano
  • PENB
    C
* Výměra jednotky dle občanského zákoníku. Plocha je tvořena součtem celé plochy jednotky a ohraničená obvodovými zdmi.

Lokalita

Okolí nemovitosti

Kontaktujte nás

nepovinné
nepovinné
Veškeré zveřejněné údaje obsažené v tomto inzerátu mají pouze informativní charakter a nejsou nabídkou ve smyslu § 1731 nebo § 1732 občanského zákoníku, ani se nejedná o veřejný příslib dle § 1733 občanského zákoníku. Z této nabídky tak nikomu nevzniká nárok na uzavření smlouvy. Společnost SVOBODA & WILLIAMS s.r.o. zprostředkovává údaje (informace) nabyté v dobré víře od vlastníka nemovité věci a z tohoto důvodu nenese odpovědnost ze jejich úplnost, správnost a přesnost. Současně není oprávněna uzavírat jménem vlastníka nemovité věci jakékoliv smlouvy spojené s prodejem nemovitosti.

Nejčerstvější nabídky do Vašeho e-mailu

Lokalita
Parametry
Velikost
Min.
Max.
Cenové rozpětí
Cena min.
Cena max.
Cenové rozpětí
Cena min.
Cena max.