Informace

Byt, 3+kk

Slunný půdní mezonetový byt s jihovýchodně orientovanou terasou v 5. patře dobře udržovaného činžovního domu s výtahem. Atraktivní lokalita Bubenče nedaleko Vítězného náměstí s plnou občanskou vybaveností a výbornou dostupností do centra města.

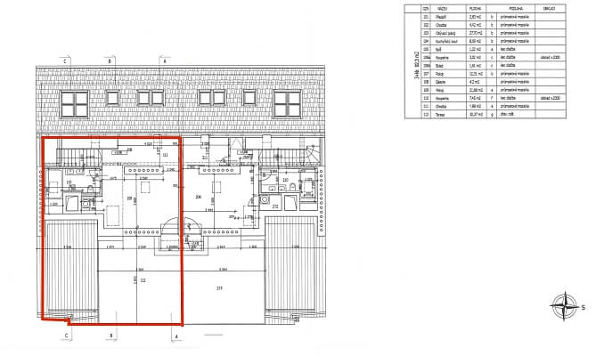
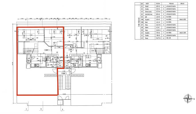
Ve spodním patře bytu se nachází útulný obývací pokoj s moderní kuchyní a komorou s místem pro pračku, ložnice, šatna a koupelna se sprchou. Horní patro přístupné po širokém schodišti nabízí hlavní ložnici s přístupem na terasu s orientací do klidného vnitrobloku, vestavěnou skříní, vlastní šatnou a malou pracovnou, dále koupelnu s velkou vanou a podlahovým vytápěním.

Součást vybavení je klimatizace Fujitsu, masivní dřevěná lepená podlaha ošetřená olejem (tropické dřevo Jatoba), velká střešní okna s venkovními i vnitřními stínícími prvky, obnažené dřevěné trámy v hlavní obytné místnosti a vytápění plynovým kotlem Panther.

Oblíbená lokalita na Praze 6 v těsné blízkosti zastávky tramvaje a autobusu, Dejvického divadla, obchodů a restaurací. Ideální spojení na letiště i do centra Prahy.

Interiér 92,3 m2, terasa 30 m2.

Vybavení

  • Sklep

Půdorys

  • Půdorys 1
  • Půdorys 2

Přehledová tabulka

  • Referenční číslo
    17793
  • Prodejní cena
    Prodáno
  • Poplatky za služby
    1 954 Kč měsíčně
  • Podlahová plocha *
    92 m²
  • Terasa
    30 m²
  • Celková plocha
    122 m²
  • Parkování
    -
  • Sklep
    Ano
  • PENB
    G
* Výměra jednotky dle občanského zákoníku. Plocha je tvořena součtem celé plochy jednotky a ohraničená obvodovými zdmi.

Lokalita

Okolí nemovitosti

Kontaktujte nás

nepovinné
nepovinné
Veškeré zveřejněné údaje obsažené v tomto inzerátu mají pouze informativní charakter a nejsou nabídkou ve smyslu § 1731 nebo § 1732 občanského zákoníku, ani se nejedná o veřejný příslib dle § 1733 občanského zákoníku. Z této nabídky tak nikomu nevzniká nárok na uzavření smlouvy. Společnost SVOBODA & WILLIAMS s.r.o. zprostředkovává údaje (informace) nabyté v dobré víře od vlastníka nemovité věci a z tohoto důvodu nenese odpovědnost ze jejich úplnost, správnost a přesnost. Současně není oprávněna uzavírat jménem vlastníka nemovité věci jakékoliv smlouvy spojené s prodejem nemovitosti.

Nejčerstvější nabídky do Vašeho e-mailu

Lokalita
Parametry
Velikost
Min.
Max.
Cenové rozpětí
Cena min.
Cena max.
Cenové rozpětí
Cena min.
Cena max.