Informace

Byt, 4+kk

Přízemní byt s velkou terasou a výhledem do parku je součástí obytného bloku s recepcí, ostrahou a podzemní garáží. Rezidenční projekt Terasy Červený vrch stojí v bezprostředním blízkosti višňového a třešňového sadu, v místě se širokou nabídkou služeb a snadným spojením do centra i na letiště.

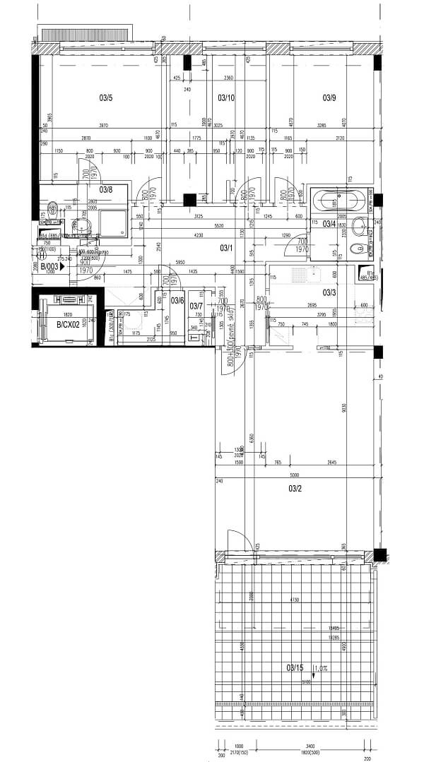
Obývací pokoj je propojený s kuchyní a terasou o velikosti 25,41 m2. Dále se zde nachází 3 ložnice (jedna s en-suite koupelnou se sprchovým koutem) s výhledem do zeleně, koupelna (s vanou, umyvadlem a WC), prostorná vstupní hala s vestavěnou skříní a komorou, hostinská toaleta a technická místnost.

Vybavení zahrnuje dřevěné podlahy, dřevěná eurookna s hliníkovými interiérovými žaluziemi, bezpečnostní vstupní dveře, alarm, trezor a kompletní kuchyňskou linku. Součástí kupní ceny je garážové stání a zděný sklep.

Obytný blok se nachází ve velmi klidné neprůjezdné ulici, z druhé strany domu je již zelená plocha navazující na přírodní park Šárka-Lysolaje, který poskytuje široké možnosti sportovního vyžití a procházek. V pěším dosahu funguje několik mateřských škol (1 přímo u domu), základní škola a gymnázium, dětská hřiště, supermarket a další obchody. 10 minut chůze je vzdálena stanice metra Bořislavka, ještě blíze tramvajová zastávka. Na letiště je to pouhých 12 minut jízdy autem.

Interiér 115,50 m2, terasa 25,41 m2, sklep 3,71 m2.

Kromě běžných prohlídek nemovitostí nabízíme také videoprohlídky v reálném čase přes WhatsApp, FaceTime, Messenger, Skype ad.

Vybavení

  • Sklep
  • Garáž

Půdorys

  • Půdorys 1

Přehledová tabulka

  • Referenční číslo
    18925
  • Prodejní cena
    Prodáno
  • Poplatky za služby
    6 500 Kč měsíčně
  • Podlahová plocha *
    116 m²
  • Terasa
    25 m²
  • Celková plocha
    141 m²
  • Parkování
    1 garážové stání
  • Sklep
    Ano
  • PENB
    C
* Výměra jednotky dle občanského zákoníku. Plocha je tvořena součtem celé plochy jednotky a ohraničená obvodovými zdmi.

Lokalita

Okolí nemovitosti

Kontaktujte nás

nepovinné
nepovinné
Veškeré zveřejněné údaje obsažené v tomto inzerátu mají pouze informativní charakter a nejsou nabídkou ve smyslu § 1731 nebo § 1732 občanského zákoníku, ani se nejedná o veřejný příslib dle § 1733 občanského zákoníku. Z této nabídky tak nikomu nevzniká nárok na uzavření smlouvy. Společnost SVOBODA & WILLIAMS s.r.o. zprostředkovává údaje (informace) nabyté v dobré víře od vlastníka nemovité věci a z tohoto důvodu nenese odpovědnost ze jejich úplnost, správnost a přesnost. Současně není oprávněna uzavírat jménem vlastníka nemovité věci jakékoliv smlouvy spojené s prodejem nemovitosti.

Nejčerstvější nabídky do Vašeho e-mailu

Lokalita
Parametry
Velikost
Min.
Max.
Cenové rozpětí
Cena min.
Cena max.
Cenové rozpětí
Cena min.
Cena max.