Informace

Byt, 2+kk

Horský apartmán ve vyhledávaném krkonošském středisku Rokytnice nad Jizerou, kousek od lanovky na vrchol Lysé hory, vhodný pro koupi za účelem rodinné rekreace nebo výhodné investice pro krátkodobý a dlouhodobý pronájem.

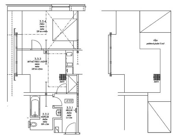
Apartmán je situovaný ve 2. a 3. patře a skládá se z předsíně, obývacího pokoje s kuchyňským koutem, ložnice, koupelny s vanou a půdy, která nabízí využití jako skladovací prostor, nebo i místo pro další lůžka. Možnost zakoupení nábytku a dalšího vybavení vyobrazeného na fotografiích za příplatek 100 000 Kč.

Celý viladům z roku 2008 je koncipován jako horská rezidence s vybavením odpovídajícím současným požadavkům rekreačního bydlení. Lokalita Rokytnice nad Jizerou je známé množstvím sjezdovek pro všechny typy lyžařů, kvalitními běžeckými tratěmi a dalším sportovním i kulturním vyžitím, včetně letní turistiky (pěší, cyklo, adrenalinové sporty). Řada obchodů, služeb, restaurací, kaváren a klubů. Výborná dopravní dostupnost z Prahy.

K bytu náleží jedno parkovací stání na venkovním soukromém parkovišti.

Kupní cena nezahrnuje 4% daň z nabytí nemovitosti.
Interiér 57,9 m2, z toho 17,4 m2 půda.

Vybavení

  • Sklep

Půdorys

  • Půdorys 1

Přehledová tabulka

  • Referenční číslo
    19420
  • Prodejní cena
    Prodáno
  • Podlahová plocha *
    58 m²
  • Celková plocha
    58 m²
  • Parkování
    -
  • Sklep
    Ano
  • PENB
    G
* Výměra jednotky dle občanského zákoníku. Plocha je tvořena součtem celé plochy jednotky a ohraničená obvodovými zdmi.

Lokalita

Okolí nemovitosti

Kontaktujte nás

nepovinné
nepovinné
Veškeré zveřejněné údaje obsažené v tomto inzerátu mají pouze informativní charakter a nejsou nabídkou ve smyslu § 1731 nebo § 1732 občanského zákoníku, ani se nejedná o veřejný příslib dle § 1733 občanského zákoníku. Z této nabídky tak nikomu nevzniká nárok na uzavření smlouvy. Společnost SVOBODA & WILLIAMS s.r.o. zprostředkovává údaje (informace) nabyté v dobré víře od vlastníka nemovité věci a z tohoto důvodu nenese odpovědnost ze jejich úplnost, správnost a přesnost. Současně není oprávněna uzavírat jménem vlastníka nemovité věci jakékoliv smlouvy spojené s prodejem nemovitosti.

Nejčerstvější nabídky do Vašeho e-mailu

Lokalita
Parametry
Velikost
Min.
Max.
Cenové rozpětí
Cena min.
Cena max.
Cenové rozpětí
Cena min.
Cena max.