Informace

Byt, 4+kk

Slunný, jihovýchodně orientovaný byt s terasou, 2 balkony a nádherným výhledem na městské panorama je umístěn v 5. nadzemním podlaží kompletně zrekonstruovaného činžovního domu s výtahem, sklepy a parkováním, ve vyhledávané lokalitě Prahy 6 – Břevnov.

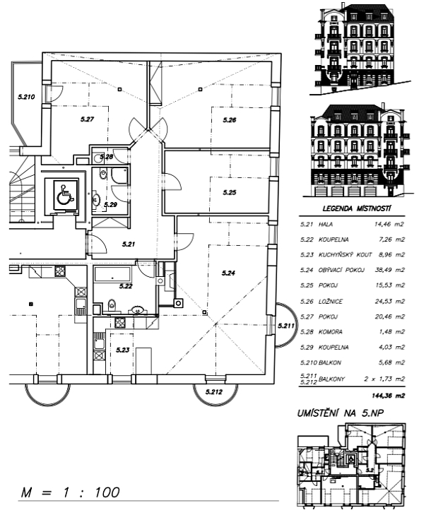
Interiér se skládá z rohového obývacího pokoje s krbem, plně zařízenou kuchyní a jídelním prostorem, 3 ložnic, 2 koupelen (jedna s vanou, umyvadlem, toaletou a bidetem, druhá se sprchovým koutem, umyvadlem a toaletou), komory/technické místnosti a velké haly.
K vybavení patří příprava na klimatizaci, parkety, velkoformátová dlažba a obklady, dřevěná okna a interiérové dveře, příprava pro venkovní žaluzie, zabezpečení, dostatek vestavěných úložných prostor. Budova je po kompletní renovaci zahrnující střechu, stoupačky, výtah, rozvody elektřiny a plynu, fasádu. K bytu patří sklep a 1 parkovací stání v samostatné garáži, možnost dalšího parkování před garáží.

Jedna z nejatraktivnějších pražských lokalit, klidná a s množstvím zeleně, s veškerou občanskou vybaveností a dobrým spojením MHD – zastávka autobusu Kajetánka, 5 minut na stanici metra linky A – Hradčanská. Mateřská a základní škola, pošta, nemocnice Střešovice, park Ladronka a koupaliště Petynka nedaleko.

Interiér 134 m2, terasa 5,5 m2, balkony 4 m2.

Vybavení

  • Sklep
  • Garáž

Půdorys

  • Půdorys 1

Přehledová tabulka

  • Referenční číslo
    21053
  • Prodejní cena
    Prodáno
  • Podlahová plocha *
    134 m²
  • Terasa
    10 m²
  • Celková plocha
    144 m²
  • Parkování
    Parkování v garáži.
  • Sklep
    Ano
  • PENB
    G
* Výměra jednotky dle občanského zákoníku. Plocha je tvořena součtem celé plochy jednotky a ohraničená obvodovými zdmi.

Lokalita

Okolí nemovitosti

Kontaktujte nás

nepovinné
nepovinné
Veškeré zveřejněné údaje obsažené v tomto inzerátu mají pouze informativní charakter a nejsou nabídkou ve smyslu § 1731 nebo § 1732 občanského zákoníku, ani se nejedná o veřejný příslib dle § 1733 občanského zákoníku. Z této nabídky tak nikomu nevzniká nárok na uzavření smlouvy. Společnost SVOBODA & WILLIAMS s.r.o. zprostředkovává údaje (informace) nabyté v dobré víře od vlastníka nemovité věci a z tohoto důvodu nenese odpovědnost ze jejich úplnost, správnost a přesnost. Současně není oprávněna uzavírat jménem vlastníka nemovité věci jakékoliv smlouvy spojené s prodejem nemovitosti.

Nejčerstvější nabídky do Vašeho e-mailu

Lokalita
Parametry
Velikost
Min.
Max.
Cenové rozpětí
Cena min.
Cena max.
Cenové rozpětí
Cena min.
Cena max.