Informace

Byt, 4+kk

Designový půdní byt s terasou a krásným výhledem na město je umístěný v 6. nadzemním podlaží částečně renovovaného činžovního domu s výtahem, ve vysoce žádané rezidenční lokalitě v pěším dosahu metra Dejvická a několika parků, včetně Královské obory Stromovka.

Dispozice nabízí otevřený obývací pokoj loftového typu s kuchyní, jídelním prostorem, vstupem na terasu a schodištěm vedoucím na galerii s dostatkem místa pro spaní pro hosty, dále prostornou hlavní ložnici s otevřenou koupelnou (zapuštěná vana a sprchový kout), 2 dětské ložnice, sdílenou koupelnu (vana, sprchový kout, toaleta), samostatnou toaletu a vstupní chodbu.
K vybavení patří masivní dřevěné podlahy, mozaikové obklady a dlažba, nová dřevěná francouzská a střešní okna, plně vybavená kuchyňská linka, SDK podhledy, odhalené stropní trámy, plynový kotel Junkers, příprava pro klimatizaci. Kupní cena zahrnuje sklep.

Bubeneč právem patří k nejoblíbenějším pražským rezidenčním lokalitám. Kromě klidné atmosféry s množstvím parků, jako je například blízká Královská obora Stromovka nebo Letenské sady, nabízí také výborné spojení do centra (metro, tram) a snadnou dopravní dostupnost na letiště Václava Havla či napojení na Pražský okruh. V blízkém okolí se nachází řada kvalitních škol a školek (včetně mezinárodních), známé restaurace, kavárny a sportoviště.

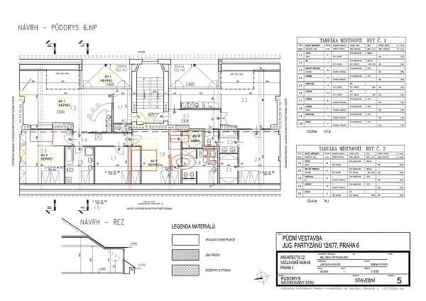
Interiér 177 m2, z toho galerie 30 m2, terasa 11 m2, sklep.

Vybavení

  • Sklep

Půdorys

  • Půdorys 1

Přehledová tabulka

  • Referenční číslo
    24500
  • Prodejní cena
    Prodáno
  • Poplatky za služby
    5 000 Kč měsíčně
  • Podlahová plocha *
    177 m²
  • Terasa
    11 m²
  • Celková plocha
    188 m²
  • Parkování
    -
  • Sklep
    Ano
  • PENB
    G
* Výměra jednotky dle občanského zákoníku. Plocha je tvořena součtem celé plochy jednotky a ohraničená obvodovými zdmi.

Lokalita

Okolí nemovitosti

Kontaktujte nás

nepovinné
nepovinné
Veškeré zveřejněné údaje obsažené v tomto inzerátu mají pouze informativní charakter a nejsou nabídkou ve smyslu § 1731 nebo § 1732 občanského zákoníku, ani se nejedná o veřejný příslib dle § 1733 občanského zákoníku. Z této nabídky tak nikomu nevzniká nárok na uzavření smlouvy. Společnost SVOBODA & WILLIAMS s.r.o. zprostředkovává údaje (informace) nabyté v dobré víře od vlastníka nemovité věci a z tohoto důvodu nenese odpovědnost ze jejich úplnost, správnost a přesnost. Současně není oprávněna uzavírat jménem vlastníka nemovité věci jakékoliv smlouvy spojené s prodejem nemovitosti.

Nejčerstvější nabídky do Vašeho e-mailu

Lokalita
Parametry
Velikost
Min.
Max.
Cenové rozpětí
Cena min.
Cena max.
Cenové rozpětí
Cena min.
Cena max.