Informace

Byt, 1+kk

Atraktivní byt 1+kk s balkonem a výhledem do zeleně přilehlé obory je situované v nejvyšším patře novostavby z roku 2013 ve velmi klidné části Uhříněvsi v sousedství rodinných domů.

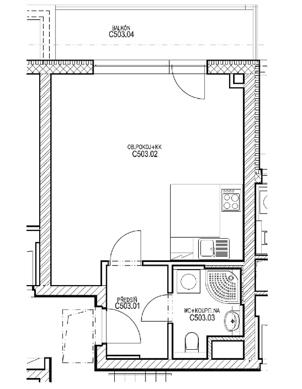
Interiér je tvořen obytnou místností s kuchyní a vstupem na balkon, koupelnou se sprchovým koutem a toaletou a předsíní s vestavěnou skříní. K vybavení patří laminátové plovoucí podlahy, keramické obklady a dlažba, plastová okna, plně vybavená kuchyňská linka, bezpečnostní vstupní dveře, domácí vrátný. Vytápění zajišťuje centrální kotelna v domě. K bytu náleží 1 venkovní parkovací stání.

Klidná lokalita v blízkosti přírodní památky Obora v Uhříněvsi a Podleského rybníka, 5 minut chůze od autobusové zastávky s přímým spojením na metro Háje a železniční stanice Praha-Uhříněves, s cestovní vzdáleností 20 minut od Hlavního nádraží. V Uhříněvsi se nachází kompletní občanská vybavenost včetně tenisové a badmintonové haly, několika restaurací, pivovaru, kina, škol a dalších služeb.

Interiér 33 m2, balkon 6,9 m2.

Půdorys

  • Půdorys 1

Přehledová tabulka

  • Referenční číslo
    26093
  • Prodejní cena
    Prodáno
  • Podlahová plocha *
    33 m²
  • Balkon
    7 m²
  • Celková plocha
    40 m²
  • Parkování
    1 venkovní parkovací stání
  • Sklep
    -
  • PENB
    C
* Výměra jednotky dle občanského zákoníku. Plocha je tvořena součtem celé plochy jednotky a ohraničená obvodovými zdmi.

Lokalita

Okolí nemovitosti

Kontaktujte nás

nepovinné
nepovinné
Veškeré zveřejněné údaje obsažené v tomto inzerátu mají pouze informativní charakter a nejsou nabídkou ve smyslu § 1731 nebo § 1732 občanského zákoníku, ani se nejedná o veřejný příslib dle § 1733 občanského zákoníku. Z této nabídky tak nikomu nevzniká nárok na uzavření smlouvy. Společnost SVOBODA & WILLIAMS s.r.o. zprostředkovává údaje (informace) nabyté v dobré víře od vlastníka nemovité věci a z tohoto důvodu nenese odpovědnost ze jejich úplnost, správnost a přesnost. Současně není oprávněna uzavírat jménem vlastníka nemovité věci jakékoliv smlouvy spojené s prodejem nemovitosti.

Nejčerstvější nabídky do Vašeho e-mailu

Lokalita
Parametry
Velikost
Min.
Max.
Cenové rozpětí
Cena min.
Cena max.
Cenové rozpětí
Cena min.
Cena max.