Informace

Byt, 4+1

Byt ve druhém podlaží s velkou, jihozápadně orientovanou terasou a množstvím úložných prostor se hodí zejména pro rodinu s dětmi. Bytový komplex Rubeška s recepcí je umístěn na kraji parku, zároveň je odtud skvělá dopravní dostupnost do centra metrem, tramvajemi i vlakem.

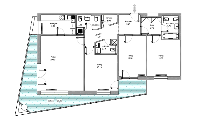
Praktická dispozice odděluje soukromou a společenskou zónu. Vlevo od předsíně je soukromá část v podobě šatny, koupelny a dvou ložnic. Jedna z nich má vstup na terasu, která tvoří ochoz kolem téměř celého bytu a je z ní krásný výhled do parku. Provozní část tvoří chodba s dveřmi do komory, prádelny a koupelny. Z chodby je také vstup do pracovny/hostinské ložnice s dveřmi na terasu. Společenská zóna se nachází ve velikém obývacím pokoji, na který navazuje samostatná kuchyň s oknem do zeleně. Pokoj opticky ještě zvětšuje světlo procházející francouzskými okny s přístupem na terasu.

Částečně zařízený byt vyžaduje určitou modernizaci. V koupelnách je toaleta, bidet, sprchový kout a vana. Kuchyně je plně vybavena. Jedna z ložnic má vestavěnou skříň. Okna jsou plastová, v obývacím pokoji velkoformátová. Topení je ústřední dálkové. Dům střeží 24hodinová recepce. K bytu patří samostatná, prostorná garáž, parkovat lze bez problémů také před domem.

Rubeška je ideálním místem pro rodinu s dětmi, a to hlavně díky sousednímu parku Podviní s mnoha možnostmi sportovního vyžití (lanový park, bobová dráha, skatepark, naučná stezka okolo potoka Rokytka, dětská hřiště i hřiště pro psy). Místo vyniká také skvělou dopravní dostupností: v docházkové vzdálenosti je stanice metra B Vysočanská, zastávka tramvají i vlakové nádraží, odkud jezdí spoje 8 minut na Masarykovo nádraží. Veškerá občanská vybavenost včetně obchodů se nachází v blízkém okolí, školka a jesle naproti domu, o kousek dál lékárna, kavárna, cukrárna.

Interiér 112,4 m2, terasa 29,45 m2, garáž 22,52 m2.

Vybavení

  • Garáž

Půdorys

  • Půdorys 1

Přehledová tabulka

  • Referenční číslo
    27164
  • Prodejní cena
    Prodáno
  • Poplatky za služby
    6 228 Kč měsíčně
  • Podlahová plocha *
    112 m²
  • Terasa
    30 m²
  • Celková plocha
    142 m²
  • Parkování
    Garáž
  • Sklep
    -
  • PENB
    C
* Výměra jednotky dle občanského zákoníku. Plocha je tvořena součtem celé plochy jednotky a ohraničená obvodovými zdmi.

Lokalita

Okolí nemovitosti

Kontaktujte nás

nepovinné
nepovinné
Veškeré zveřejněné údaje obsažené v tomto inzerátu mají pouze informativní charakter a nejsou nabídkou ve smyslu § 1731 nebo § 1732 občanského zákoníku, ani se nejedná o veřejný příslib dle § 1733 občanského zákoníku. Z této nabídky tak nikomu nevzniká nárok na uzavření smlouvy. Společnost SVOBODA & WILLIAMS s.r.o. zprostředkovává údaje (informace) nabyté v dobré víře od vlastníka nemovité věci a z tohoto důvodu nenese odpovědnost ze jejich úplnost, správnost a přesnost. Současně není oprávněna uzavírat jménem vlastníka nemovité věci jakékoliv smlouvy spojené s prodejem nemovitosti.

Nejčerstvější nabídky do Vašeho e-mailu

Lokalita
Parametry
Velikost
Min.
Max.
Cenové rozpětí
Cena min.
Cena max.
Cenové rozpětí
Cena min.
Cena max.