Informace

Byt, 3+kk

Slunný byt 3+kk s pracovnou a balkonem, který vznikl v roce 2006 cihlovou nástavbou na panelovém domě, leží v poklidné lokalitě Brna Líšeň, pár minut chůze od zastávek MHD a dalších služeb.

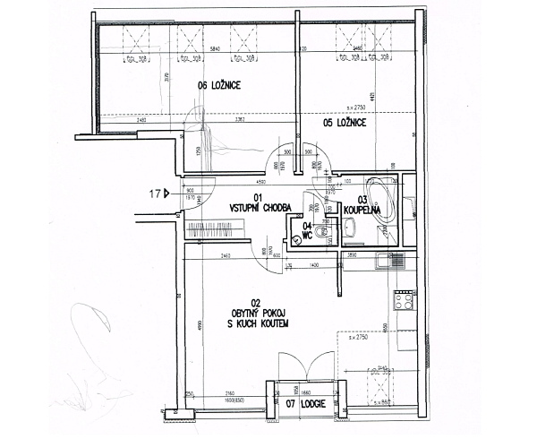
Interiér tohoto bytu v posledním, 5. patře domu se skládá z předsíně se vstupy do všech obytných místností: příjemně světlého hlavního obytného prostoru s kuchyňským koutem a vstupem na balkon, dvou ložnic, koupelny a samostatnou toaletu. Přímo v bytě je k dispozici půda o výměře 40 m2 a dále komora ve 4. patře.
Vybavení zahrnuje plovoucí podlahy, velkoformátovou dlažbu a obklady, plastová okna a plně vybavenou kuchyňskou linku se spotřebiči Zanussi.

Lokalita se vyznačuje hlavně příjemným klidem a množstvím zeleně. Pár kroků od domu se nachází mateřská škola a dětské hřiště, už za 10 minut lze pak procházkou dojít ke gymnáziu i základní škole, dále k supermarketu, obchodům, několika restauracím a dalším.

Interiér 82 m2, balkon 2 m2, půda 40 m2.

Půdorys

  • Půdorys 1

Přehledová tabulka

  • Referenční číslo
    28765
  • Prodejní cena
    Prodáno
  • Poplatky za služby
    2 400 Kč měsíčně
  • Podlahová plocha *
    80 m²
  • Lodžie
    2 m²
  • Celková plocha
    82 m²
  • Parkování
    -
  • Sklep
    -
  • PENB
    C
* Výměra jednotky dle občanského zákoníku. Plocha je tvořena součtem celé plochy jednotky a ohraničená obvodovými zdmi.

Lokalita

Okolí nemovitosti

Kontaktujte nás

nepovinné
nepovinné
Veškeré zveřejněné údaje obsažené v tomto inzerátu mají pouze informativní charakter a nejsou nabídkou ve smyslu § 1731 nebo § 1732 občanského zákoníku, ani se nejedná o veřejný příslib dle § 1733 občanského zákoníku. Z této nabídky tak nikomu nevzniká nárok na uzavření smlouvy. Společnost SVOBODA & WILLIAMS s.r.o. zprostředkovává údaje (informace) nabyté v dobré víře od vlastníka nemovité věci a z tohoto důvodu nenese odpovědnost ze jejich úplnost, správnost a přesnost. Současně není oprávněna uzavírat jménem vlastníka nemovité věci jakékoliv smlouvy spojené s prodejem nemovitosti.

Nejčerstvější nabídky do Vašeho e-mailu

Lokalita
Parametry
Velikost
Min.
Max.
Cenové rozpětí
Cena min.
Cena max.
Cenové rozpětí
Cena min.
Cena max.