Informace

Byt, 3+kk

Útulný klimatizovaný mezonet s výhledy do zeleně je součástí udržovaného domu s výtahem. Oblíbená část Prahy 6 Vokovice nabízí snadnou dopravní dostupnost i kompletní občanskou vybavenost.

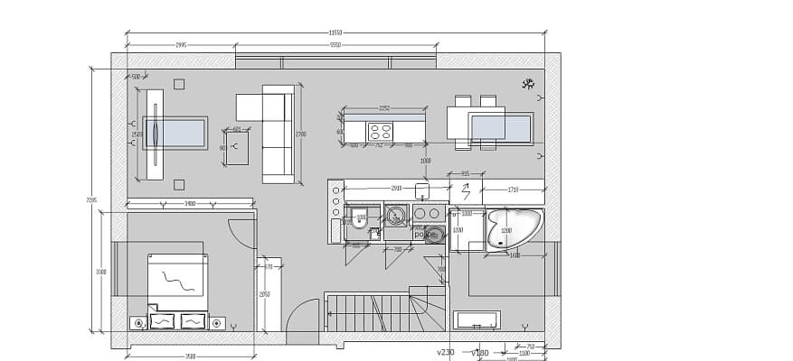
Vstupní úroveň v 5. podlaží tvoří otevřený prostor obývacího pokoje s jídelnou a kuchyní, dále ložnice, koupelna (s vanou a sprchovým koutem), samostatná toaleta, komora a předsíň se schodištěm do patra. Celé horní patro zabírá ložnice s okny na dvě světové strany, které dodávají místnosti přijemnou atomosféru a součástí ložnice je i pracovní kout.

Vybavení zahrnuje klimatizaci Samsung, podlahové vytápění Danfoss, kvalitní laminátové podlahy, kuchyňské spotřebiče zn. Samsung, Siemens a Bosch, venkovní rolety, systém inteligentní domácnosti Loxone (ovládání světel, vytápění, rolet a klimatizace), bezpečnostní dveře, videotelefon a alarm. K jednotce přísluší sklep.

Dům stojí v klidné ulici rezidenční čtvrti s množstvím zeleně. V pěším dosahu je několik mateřských a základních škol, gymnázium, pošta, lékárna, poliklinika, wellness centrum nebo zimní stadion. Stanice metra linky A Bořislavka a zastávka tramvaje jsou také vzdáleny jen pár minut chůze. Z místa je rychlé dostupné letiště.

Interiér 93,27 m2, sklep 2,53 m2.

Vybavení

  • Sklep

Půdorys

  • Půdorys 1
  • Půdorys 2

Přehledová tabulka

  • Referenční číslo
    28927
  • Prodejní cena
    Prodáno
  • Podlahová plocha *
    93 m²
  • Celková plocha
    93 m²
  • Parkování
    -
  • Sklep
    Ano
  • PENB
    C
* Výměra jednotky dle občanského zákoníku. Plocha je tvořena součtem celé plochy jednotky a ohraničená obvodovými zdmi.

Lokalita

Okolí nemovitosti

Kontaktujte nás

nepovinné
nepovinné
Veškeré zveřejněné údaje obsažené v tomto inzerátu mají pouze informativní charakter a nejsou nabídkou ve smyslu § 1731 nebo § 1732 občanského zákoníku, ani se nejedná o veřejný příslib dle § 1733 občanského zákoníku. Z této nabídky tak nikomu nevzniká nárok na uzavření smlouvy. Společnost SVOBODA & WILLIAMS s.r.o. zprostředkovává údaje (informace) nabyté v dobré víře od vlastníka nemovité věci a z tohoto důvodu nenese odpovědnost ze jejich úplnost, správnost a přesnost. Současně není oprávněna uzavírat jménem vlastníka nemovité věci jakékoliv smlouvy spojené s prodejem nemovitosti.

Nejčerstvější nabídky do Vašeho e-mailu

Lokalita
Parametry
Velikost
Min.
Max.
Cenové rozpětí
Cena min.
Cena max.
Cenové rozpětí
Cena min.
Cena max.