Informace

Byt č. 11.4, 4.NP, 3+kk

Novostavba vzdušného a světlého bytu v minimalistickém designu je součástí butikového projektu Vila Hodkovičky situovaného do pokojné vilové čtvrti s příjemně komorní atmosférou. Projekt byl zkolaudován.

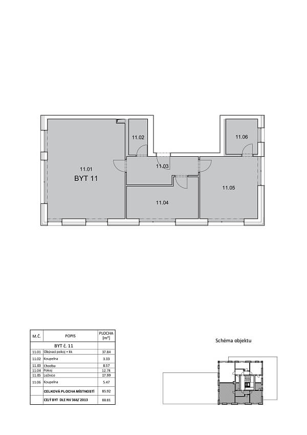
Dispozice bytu ve 4. podlaží nabízí velkorysý jihovýchodně orientovaný obytný prostor s otevřenou kuchyní a jídelnou, dále 2 ložnice, 2 koupelny a chodbu.

Vybavení bude zahrnovat dřevěná okna o velikosti „floor-to-ceiling“ s trojskly, koupelny s velkoformátovou dlažbou, mosaikové obklady Durstone, sanitární zařízení Hüppe, Laufen a Grohe, podlahové vytápění, interiérové dveře Sapeli a bezpečnostní vstupní dveře. V současné době si může přesný typ zařízení zvolit klient sám, upravit lze i dispozici. Možnost zakoupení parkovacího stání se sklepem.

Viladům je umístěn v jedné z nejklidnějších částí Prahy, obklopené hustou zelení. Kousek odtud se vine oblíbená cyklostezka podél Vltavy, další sportovní vyžití nabízí blízké sportovní areály a golfový klub. V krátké dojezdové vzdálenosti je velké nákupní centrum. Jen pár minut chůze od domu staví tramvaj, která jede 20 minut na Václavské náměstí. V docházkové vzdálenosti je i zastávka autobusů a vlakové nádraží Praha-Braník s rychlými a přímými spoji na Hlavní nádraží. Cesty autem usnadňuje nedaleký nájezd na Barrandovský most nebo na Pražský okruh.

Plocha bytu dle NOZ 85,92 m2.

Více informací o projektu zde: www.vilahodkovicky.cz.

Kromě běžných prohlídek nemovitostí nabízíme také videoprohlídky v reálném čase přes WhatsApp, FaceTime, Messenger, Skype ad.

Vybavení

  • Sklep

Půdorys

  • Půdorys 1

Přehledová tabulka

  • Referenční číslo
    29602
  • Prodejní cena
    Prodáno
  • Podlahová plocha *
    86 m²
  • Celková plocha
    86 m²
  • Parkování
    Ano
  • Sklep
    Ano
  • PENB
    B
  • Informace o projektu
* Výměra jednotky dle občanského zákoníku. Plocha je tvořena součtem celé plochy jednotky a ohraničená obvodovými zdmi.

Lokalita

Okolí nemovitosti

Kontaktujte nás

nepovinné
nepovinné
Veškeré zveřejněné údaje obsažené v tomto inzerátu mají pouze informativní charakter a nejsou nabídkou ve smyslu § 1731 nebo § 1732 občanského zákoníku, ani se nejedná o veřejný příslib dle § 1733 občanského zákoníku. Z této nabídky tak nikomu nevzniká nárok na uzavření smlouvy. Společnost SVOBODA & WILLIAMS s.r.o. zprostředkovává údaje (informace) nabyté v dobré víře od vlastníka nemovité věci a z tohoto důvodu nenese odpovědnost ze jejich úplnost, správnost a přesnost. Současně není oprávněna uzavírat jménem vlastníka nemovité věci jakékoliv smlouvy spojené s prodejem nemovitosti.

Nejčerstvější nabídky do Vašeho e-mailu

Lokalita
Parametry
Velikost
Min.
Max.
Cenové rozpětí
Cena min.
Cena max.
Cenové rozpětí
Cena min.
Cena max.