Informace

Byt, 4+1

Prostorný a světlý rohový byt je součástí pěkně upraveného činžovního domu z počátku 20. století s novým výtahem. Diplomatická čtvrť Bubeneč nabízí příjemné procházky vilovou čtvrtí s množstvím zeleně, blízkost parků i stanic MHD a kompletní vybavenost.

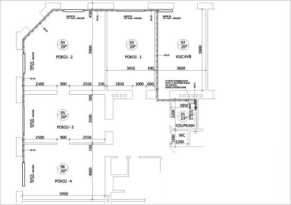
Dominantou bytu ve 4. podlaží je velkorysá centrální hala, odkud vedou dveře do všech místností: rohového obývacího pokoje, severní ložnice, 2 západních ložnic, příjemně prostorné kuchyně s jídelnou, koupelny (s vanou), komory, technické místnosti a na toaletu.

Interiér si i po kompletní rekonstrukci v r. 2012 zachoval svou původní noblesu, kterou podtrhují vysoké stropy a velká špaletová okna (nová, s akustickou a tepelnou izolací). K vybavení patří repasované parkety a dveře, kuchyňská linka Sykora (s plynovým sporákem), bezpečnostní dveře nebo příprava na zabezpečovací zařízení. Vytápění plynovým kotlem Junkers. K bytu přísluší 2 sklepy, výtah vede do mezipatra.

Dům stojí v oblíbené lokalitě s veškerými službami a skvělou dopravní dostupností. Stanice metra a tramvají Dejvická i Hradčanská jsou v pěším dosahu. Snadno dostupné je centrum i letiště. Mateřská a základní škola jsou pár kroků od domu, další v okolí. V blízkosti je velké množství restaurací, kaváren, obchůdků, ale také lékárny, banky, obecní úřad nebo pošta. Na blízkém Vítězném náměstí se pravidelně konají farmářské trhy. Krátkou procházkou lze dojít do Stromovky, královských zahrad i Letenských sadů.

Interiér 145,7 m2

Vybavení

  • Sklep

Půdorys

  • Půdorys 1

Přehledová tabulka

  • Referenční číslo
    30283
  • Prodejní cena
    Prodáno
  • Poplatky za služby
    5 055 Kč měsíčně
  • Podlahová plocha *
    145 m²
  • Celková plocha
    145 m²
  • Parkování
    -
  • Sklep
    Ano
  • PENB
    D
* Výměra jednotky dle občanského zákoníku. Plocha je tvořena součtem celé plochy jednotky a ohraničená obvodovými zdmi.

Lokalita

Okolí nemovitosti

Kontaktujte nás

nepovinné
nepovinné
Veškeré zveřejněné údaje obsažené v tomto inzerátu mají pouze informativní charakter a nejsou nabídkou ve smyslu § 1731 nebo § 1732 občanského zákoníku, ani se nejedná o veřejný příslib dle § 1733 občanského zákoníku. Z této nabídky tak nikomu nevzniká nárok na uzavření smlouvy. Společnost SVOBODA & WILLIAMS s.r.o. zprostředkovává údaje (informace) nabyté v dobré víře od vlastníka nemovité věci a z tohoto důvodu nenese odpovědnost ze jejich úplnost, správnost a přesnost. Současně není oprávněna uzavírat jménem vlastníka nemovité věci jakékoliv smlouvy spojené s prodejem nemovitosti.

Nejčerstvější nabídky do Vašeho e-mailu

Lokalita
Parametry
Velikost
Min.
Max.
Cenové rozpětí
Cena min.
Cena max.
Cenové rozpětí
Cena min.
Cena max.