Informace

Byt, 2+kk

Přízemní byt se západně orientovanou terasou a zahrádkou, garáží a prostorem pro privátní fitness, domácí kino nebo kancelář je součástí oceňovaného projektu Central Park Praha od studia A69 architekti. Uzavřený bezpečný komplex se rozkládá v sousedství parku, v místě s kompletními službami a snadnou dostupností MHD.

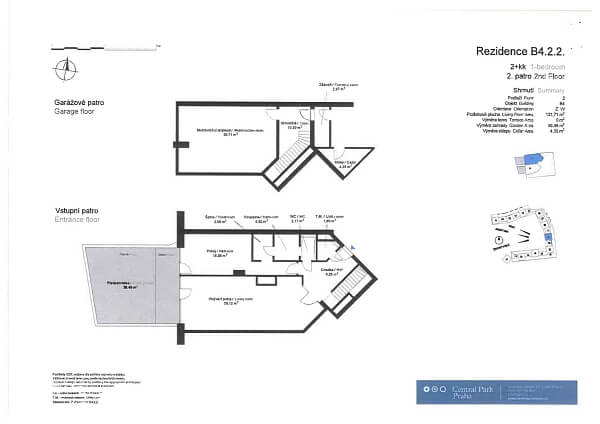
Plochu bytu tvoří obývací pokoj s kuchyní, ložnice, vybavená šatna, koupelna, toaleta, technická místnost, vstupní hala a zádveří. Obě obytné místnosti mají vstup na terasu a dále na zahradu. O patro níže (v suterénu) je multifunkční místnost, která je přístupná schodištěm z chodby. Garáž a sklep jsou přímo u spodní úrovně bytu a usnadňují tak ukládání například kol a dalšího sportovního náčiní.

Podlaha je plovoucí dřevěná s topnými konvektory, okna „od podlahy ke stropu“ také dřevěná. Vstupní dveře splňují bezpečnostní třídu 3, interiérové dveře jsou bezfalcové dýhované. Kuchyňská linka je vybavena spotřebiči Siemens a kamennou pracovní deskou. Koupelna propojená posuvnými dveřmi s toaletou má hydromasážní vanu se sprchovou zástěnou, TV přípojku, velkoformátovou dlažbu a otopný žebřík. Vytápění je centrální. Garážové místo lze uzavřít roletou. Celý komplex střeží ostraha, slouží zde nonstop recepce a správce, který zajišťuje služby osobní asistence.

Přímo v komplexu funguje kavárna, hned vedle je pošta, poliklinika nebo wellness centrum. V okolí je množství obchodů včetně potravin, v rychlém dojezdu autem či tramvají pak obchodně-zábavní centrum Flora. Nejbližší stanice metra (Želivského) je vzdálena 4 minuty jízdy tramvají, přímá cesta tramvají do centra trvá pouhých 10 minut. Komplex má vlastní uzavřený park, další možnosti procházek či venčení pejsků nabízí rozlehlá Parukářka na vrchu svatého Kříže.

Výměra dle OZ 127,36 m2 (z toho 36,23 m2 tvoří multifunkční místnost a 10,5 m2 schodiště), zahrada 38 m2, sklep 4,35 m2.

Vybavení

  • Sklep
  • Garáž

Půdorys

  • Půdorys 1

Přehledová tabulka

  • Referenční číslo
    33484
  • Prodejní cena
    Prodáno
  • Poplatky za služby
    10 528 Kč měsíčně
  • Podlahová plocha *
    128 m²
  • Celková plocha
    128 m²
  • Zahrada
    38 m²
  • Parkování
    Uzavíratelné garážové stání
  • Sklep
    Ano
  • PENB
    C
* Výměra jednotky dle občanského zákoníku. Plocha je tvořena součtem celé plochy jednotky a ohraničená obvodovými zdmi.

Lokalita

Okolí nemovitosti

Kontaktujte nás

nepovinné
nepovinné
Veškeré zveřejněné údaje obsažené v tomto inzerátu mají pouze informativní charakter a nejsou nabídkou ve smyslu § 1731 nebo § 1732 občanského zákoníku, ani se nejedná o veřejný příslib dle § 1733 občanského zákoníku. Z této nabídky tak nikomu nevzniká nárok na uzavření smlouvy. Společnost SVOBODA & WILLIAMS s.r.o. zprostředkovává údaje (informace) nabyté v dobré víře od vlastníka nemovité věci a z tohoto důvodu nenese odpovědnost ze jejich úplnost, správnost a přesnost. Současně není oprávněna uzavírat jménem vlastníka nemovité věci jakékoliv smlouvy spojené s prodejem nemovitosti.

Nejčerstvější nabídky do Vašeho e-mailu

Lokalita
Parametry
Velikost
Min.
Max.
Cenové rozpětí
Cena min.
Cena max.
Cenové rozpětí
Cena min.
Cena max.