Informace

Byt 1 + kk, 2.NP, č.22

Byt se zimní zahradou ve 2. podlaží novostavby umístěné vysoko nad centrem Prahy a údolím Vltavy, v oblíbené čtvrti Kobylisy s perfektním dopravním spojením, kompletní nabídkou služeb a množstvím zeleně. Dokončení je naplánováno na konec tohoto roku.

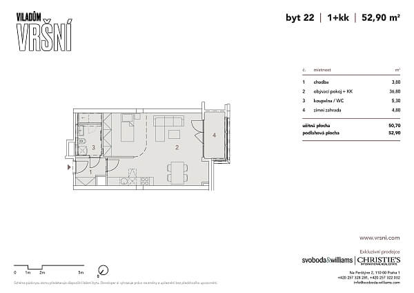
Dispozici bytu tvoří hlavní obytný prostor s přípravou na kuchyni a dostatkem místa pro spáci zónu, jehož součástí je uzaviratelná zimní zahrada. Dále je zde koupelna (se sprchovým koutem a WC) a prostorná vstupní chodba.

Interiér bude dokončen v elegantním standardu, zahrnujícím vinylové podlahy, keramickou dlažbu a obklady v koupelně, francouzská okna s dřevěnými a hliníkovými rámy, značkovou sanitu a bezpečnostní vstupní dveře. Vytápění bude zajišťovat centrální plynová kotelna v domě. Kupní cena zahrnuje sklep.

Dům vzniká v místě vzdáleném pouhých 20 minut tramvají od centra a stanice metra je 150 m od domu. V blízkém okolí funguje supermarket, kobyliský Dvůr s farmářskými produkty a komunitními akcemi, několik kaváren a restaurací, spousta malých obchodů, banka, lékárna nebo koupaliště, další služby (poliklinika, mateřské a základní školy, sportovní hala) jsou v docházkové vzdálenosti. V blízkosti je plno upravených zelených ploch, například revitalizovaný park Dlážděnka, přírodní památka Okrouhlík, rozlehlý Ďáblický háj nebo přírodní park Drahaň-Troja s mnoha unikátními přírodními památkami.

Celková plocha dle OZ 52,9 m2.

Kromě běžných prohlídek nemovitostí nabízíme také videoprohlídky v reálném čase přes WhatsApp, FaceTime, Messenger, Skype ad.

Vybavení

  • Sklep

Půdorys

  • Půdorys 1

Přehledová tabulka

  • Referenční číslo
    34649
  • Prodejní cena
    Prodáno
  • Podlahová plocha *
    53 m²
  • Celková plocha
    52 m²
  • Parkování
    -
  • Sklep
    Ano
  • PENB
    C
* Výměra jednotky dle občanského zákoníku. Plocha je tvořena součtem celé plochy jednotky a ohraničená obvodovými zdmi.

Lokalita

Okolí nemovitosti

Kontaktujte nás

nepovinné
nepovinné
Veškeré zveřejněné údaje obsažené v tomto inzerátu mají pouze informativní charakter a nejsou nabídkou ve smyslu § 1731 nebo § 1732 občanského zákoníku, ani se nejedná o veřejný příslib dle § 1733 občanského zákoníku. Z této nabídky tak nikomu nevzniká nárok na uzavření smlouvy. Společnost SVOBODA & WILLIAMS s.r.o. zprostředkovává údaje (informace) nabyté v dobré víře od vlastníka nemovité věci a z tohoto důvodu nenese odpovědnost ze jejich úplnost, správnost a přesnost. Současně není oprávněna uzavírat jménem vlastníka nemovité věci jakékoliv smlouvy spojené s prodejem nemovitosti.

Nejčerstvější nabídky do Vašeho e-mailu

Lokalita
Parametry
Velikost
Min.
Max.
Cenové rozpětí
Cena min.
Cena max.
Cenové rozpětí
Cena min.
Cena max.