Informace

Byt, 2+kk

Kompletně a zároveň citlivě zrekonstruovaný tichý staroměstský byt je umístěn ve 4. nadzemním podlaží funkcionalistického domu s výtahem, situovaného v boční uličce v samém centru metropole, jen pár kroků od nákupního centra Palladium a stanice metra na náměstí Republiky.

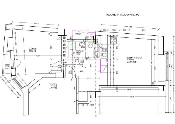
Dispozice se skládá z obývacího pokoje s otevřenou kuchyní, jedné ložnice s balkonem a oknem do klidného vnitrobloku, koupelny (s walk-in sprchovým koutem, umyvadlem, WC, přípojkou na pračku, designovým otopným žebříkem) a vzdušné předsíně, na kterou plynule navazuje obytný prostor.

Díky zdařilé rekonstrukci interiér působí velmi vzdušně a lehce. K vybavení patří dřevěné parkety, velká nová špaletová okna, důmyslně promyšlené vestavěné skříně, kompletní kuchyňská linka s vestavnými spotřebiči a kvalitní sanita. Kupní cena zahrnuje sklep.

Výjimečně tiché zákoutí staré Prahy se nachází v rychlém dosahu metra i tramvají. V blízké Dlouhé ulici je bezpočet vyhlášených restaurací, butiků a obchodů s delikatesami, stejně jako Divadlo v Dlouhé, koncertní klub Roxy či klub s galerií NoD, blízko je na poštu i ke zdravotnickým službám. Místo leží na pomezí dvou světů: na jedné straně jsou tajuplné křivolaké uličky okolo Haštalského náměstí, na té druhé moderní businessová zóna soustředící se v blízkosti náměstí Republiky a třídy Na Příkopě. Kdo zatouží po klidu v zeleni, má na dosah zahradu Za svatyněmi u Anežského kláštera nebo velké Letenské sady na protějším břehu Vltavy.

Interiér 49,03 m2, balkon 0,92 m2, sklep.

Vybavení

  • Sklep

Půdorys

  • Půdorys 1

Přehledová tabulka

  • Referenční číslo
    36895
  • Prodejní cena
    Prodáno
  • Podlahová plocha *
    49 m²
  • Balkon
    1 m²
  • Celková plocha
    50 m²
  • Parkování
    -
  • Sklep
    Ano
  • PENB
    G
* Výměra jednotky dle občanského zákoníku. Plocha je tvořena součtem celé plochy jednotky a ohraničená obvodovými zdmi.

Lokalita

Okolí nemovitosti

Kontaktujte nás

nepovinné
nepovinné
Veškeré zveřejněné údaje obsažené v tomto inzerátu mají pouze informativní charakter a nejsou nabídkou ve smyslu § 1731 nebo § 1732 občanského zákoníku, ani se nejedná o veřejný příslib dle § 1733 občanského zákoníku. Z této nabídky tak nikomu nevzniká nárok na uzavření smlouvy. Společnost SVOBODA & WILLIAMS s.r.o. zprostředkovává údaje (informace) nabyté v dobré víře od vlastníka nemovité věci a z tohoto důvodu nenese odpovědnost ze jejich úplnost, správnost a přesnost. Současně není oprávněna uzavírat jménem vlastníka nemovité věci jakékoliv smlouvy spojené s prodejem nemovitosti.

Nejčerstvější nabídky do Vašeho e-mailu

Lokalita
Parametry
Velikost
Min.
Max.
Cenové rozpětí
Cena min.
Cena max.
Cenové rozpětí
Cena min.
Cena max.