Informace

Byt, 3+kk

Klimatizovaný penthouse s terasou se nachází v historickém domě, kde vzniká pohodlné bydlení odpovídající současným standardům a trendům. Citlivě rekonstruovaný bytový dům stojí na krásně upraveném náměstí na rozhraní Žižkova a Vinohrad. Počátek stavby červecec 2021, předpokládaný termín dokončení léto 2023.

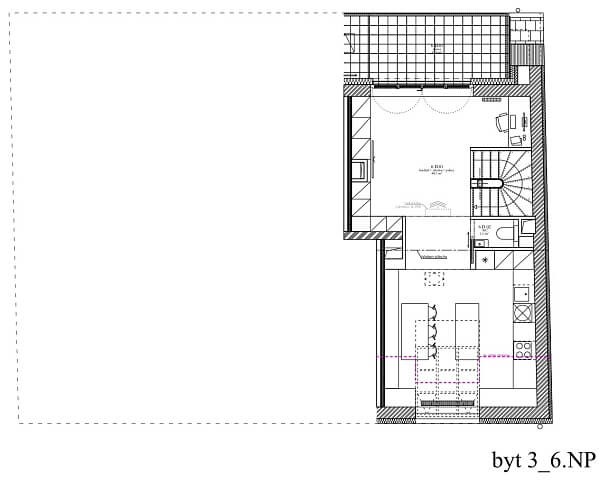
Ve vstupní úrovni (v 5. NP domu) je umístěna hlavní ložnice se šatnou, en-suite koupelnou a balkonkem, druhá ložnice, další koupelna a vstupní hala se schodištěm do podkroví. Zde je velká obytná kuchyně s jídelnou propojená s obývacím pokojem a samostatná toaleta. Z obývacího pokoje lze vstoupit na terasu orientovanou na jihozápad do vnitrobloku.

Ve standardu jsou zahrnuty dokončené koupelny, klimatizace, dřevěné podlahy, dvoukřídlé lakované dveře, jednokřídlé bezfalcové dveře, vstupní bezpečnostní dveře vytvořené dle původních dobových dveří, velkoformátová dlažba, koupelnové baterie Kludi a většina svítidel. V obývacím pokoji lze instalovat krb na biolíh. Vytápění zajistí plynová domovní kotelna.

K bytu je možné přikoupit parkovací stání ve dvoře.

Na Žižkově náměstí, u nějž dům stojí, byl nedávno dokončen park a dětské hřiště. Na dosah ruky jsou obchody včetně supermarketu, pošta, lékárna, mateřská a základní škola, ZUŠ, restaurace i kavárny, blízko je do Mahlerových sadů s Žižkovskou věží, procházkou je možné dojít i do Riegrových sadů nebo do parku na Parukářce. 5 minut chůze je vzdálena tramvajová zastávka, v docházkové vzdálenosti je také stanice metra na náměstí Jiřího z Poděbrad, kde je koncentrováno množství bister, kaváren i farmářských stánků.

Podlahová plocha 100,1 m2, balkon 0,9 m2, terasa 11,4 m2, sklep 2 m2.

Kromě běžných prohlídek nemovitostí nabízíme také videoprohlídky v reálném čase přes WhatsApp, FaceTime, Messenger, Skype ad.

Vybavení

  • Sklep
  • Garáž

Půdorys

  • Půdorys 1
  • Půdorys 2
  • Půdorys 3
  • Půdorys 4

Přehledová tabulka

  • Referenční číslo
    39183
  • Prodejní cena
    Prodáno
  • Podlahová plocha *
    100 m²
  • Terasa
    11 m²
  • Celková plocha
    112 m²
  • Parkování
    Parkovací stání za příplatek
  • Sklep
    Ano
  • PENB
    B
* Výměra jednotky dle občanského zákoníku. Plocha je tvořena součtem celé plochy jednotky a ohraničená obvodovými zdmi.

Lokalita

Okolí nemovitosti

Kontaktujte nás

nepovinné
nepovinné
Veškeré zveřejněné údaje obsažené v tomto inzerátu mají pouze informativní charakter a nejsou nabídkou ve smyslu § 1731 nebo § 1732 občanského zákoníku, ani se nejedná o veřejný příslib dle § 1733 občanského zákoníku. Z této nabídky tak nikomu nevzniká nárok na uzavření smlouvy. Společnost SVOBODA & WILLIAMS s.r.o. zprostředkovává údaje (informace) nabyté v dobré víře od vlastníka nemovité věci a z tohoto důvodu nenese odpovědnost ze jejich úplnost, správnost a přesnost. Současně není oprávněna uzavírat jménem vlastníka nemovité věci jakékoliv smlouvy spojené s prodejem nemovitosti.

Nejčerstvější nabídky do Vašeho e-mailu

Lokalita
Parametry
Velikost
Min.
Max.
Cenové rozpětí
Cena min.
Cena max.
Cenové rozpětí
Cena min.
Cena max.