-
Byt 2+kk
-
Praha 9, Libeň, Čihákova
- Podlahová plocha
- 59 m²
Nově zrekonstruovaný světlý byt v 1. patře pečlivě udržovaného domu s výtahem a společnou uzavřenou zahradou s posezením pro rezidenty. Budova stojí v blízkosti parku Podviní a divadla Gong, nedaleko nákupní galerie Harfa a O2 arény. Rychlé spojení do centra tramvajemi, v blízkosti stanice metra Českomoravská (trasa B).
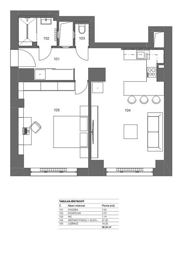
Dispoziční uspořádání bytu tvoří obývací pokoj s plně vybaveným kuchyňským koutem a jídelnou, 1 ložnice se skříněmi na míru, koupelna se sprchovým koutem, samostatná toaleta a prostorná vstupní chodba s vestavěným nábytkem. Oba pokoje mají příjemný severozápadní výhled do klidné uzavřené zahrady. K apartmánu náleží sklep.
V bytě jsou položeny nové dřevěné podlahy a instalována dřevěná okna s trojskly. Apartmán má dostatek úložných prostor. Vytápění je zajištěno centrálně.
Umístění bytu v centru Libně znamená plnou občanskou vybavenost v pĕší vzdálenosti včetně velkého nákupního centra, mnoha restaurací a kaváren, sportovišť a dětských hřišť. Stanice metra Českomoravská 250 m od bytu, stejně tak tramvajová zastávka. Klidné útočiště v zeleni představuje okolí povodí Rokytky a park Podviní.
Podlahová plocha 58,54 m2, sklep 3 m2. Výměra dle zaměření po rekonstrukci.
V případě jakýchkoliv dotazů se na nás můžete kdykoliv obrátit. Náš tým se vám obratem ozve.