Informace

Byt, 3+1

Pěkně zrekonstruovaný byt s jižně orientovaným balkonem je umístěn v 5. podlaží bytového domu s výtahem v klidné a zelené části Žižkova, v místě s veškerými službami a dobrou dostupností MHD.

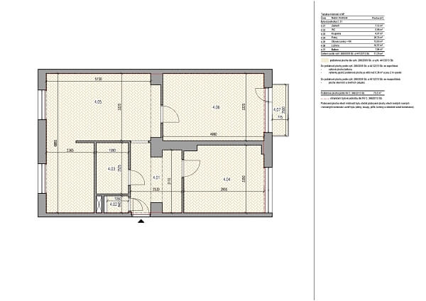
Účelnou dispozici tvoří obývací pokoj s navazující kuchyní, 2 ložnice, koupelna, samostatná toaleta a velkoryse pojatá vstupní chodba s vestavěnými skříněmi. Z 1 ložnice vede vstup na balkon s výhledem do košaté koruny stromu.

Byt byl zrekonstruován v r. 2020, dům bude na jaře r. 2022 zateplen a budou opraveny balkony a zvonky s domovním telefonem. Okna jsou plastová s dvojskly, v ložnicích jsou repasované parkety, v obývacím pokoji a kuchyňském koutu vinylová podlaha, v koupelně dlažba. Kuchyně Katalpa je vybavena vestavnými spotřebiči včetně vinotéky, v obývacím pokoji je knihovna na míru. Vstupní dveře jsou bezpečnostní, vytápění dálkové.

Kousek od domu funguje mateřská škola, jen pár minut chůze je vzdálena i základní škola. Veškerá další občanská vybavenost se nachází též v rychlém dosahu – supermarket i menší obchody, pošta, lékárna, poliklinika, restaurace i sportoviště. Asi 5 minut trvá pěší cesta k tramvajové a autobusové zastávce, cesta do centra zabere necelých 20 minut. Lokalitu zpříjemňuje několik parků – Malešický les, vrch Třešňovka, Krejcárek nebo Židovské pece.

Interiér 70,4 m2, balkon 1,94 m2, sklep 1 m2.

Kromě běžných prohlídek nemovitostí nabízíme také videoprohlídky v reálném čase přes WhatsApp, FaceTime, Messenger, Skype ad.

Vybavení

  • Sklep

Půdorys

  • Půdorys 1

Přehledová tabulka

  • Referenční číslo
    41063
  • Prodejní cena
    Prodáno
  • Poplatky za služby
    4 680 Kč měsíčně
  • Podlahová plocha *
    70 m²
  • Balkon
    1 m²
  • Celková plocha
    72 m²
  • Parkování
    -
  • Sklep
    Ano
  • PENB
    G
* Výměra jednotky dle občanského zákoníku. Plocha je tvořena součtem celé plochy jednotky a ohraničená obvodovými zdmi.

Lokalita

Okolí nemovitosti

Kontaktujte nás

nepovinné
nepovinné
Veškeré zveřejněné údaje obsažené v tomto inzerátu mají pouze informativní charakter a nejsou nabídkou ve smyslu § 1731 nebo § 1732 občanského zákoníku, ani se nejedná o veřejný příslib dle § 1733 občanského zákoníku. Z této nabídky tak nikomu nevzniká nárok na uzavření smlouvy. Společnost SVOBODA & WILLIAMS s.r.o. zprostředkovává údaje (informace) nabyté v dobré víře od vlastníka nemovité věci a z tohoto důvodu nenese odpovědnost ze jejich úplnost, správnost a přesnost. Současně není oprávněna uzavírat jménem vlastníka nemovité věci jakékoliv smlouvy spojené s prodejem nemovitosti.

Nejčerstvější nabídky do Vašeho e-mailu

Lokalita
Parametry
Velikost
Min.
Max.
Cenové rozpětí
Cena min.
Cena max.
Cenové rozpětí
Cena min.
Cena max.