Informace

Byt, 3+1

Klasický městský byt se zachovanými původními řemeslnými prvky a s balkonkem do vnitrobloku se nachází ve 2. podlaží památkově chráněného funkcionalistického domu z r. 1936–37, stojícího v Praze 7 - Holešovicích, v jednosměrné ulici přímo u Strossmayerova náměstí.

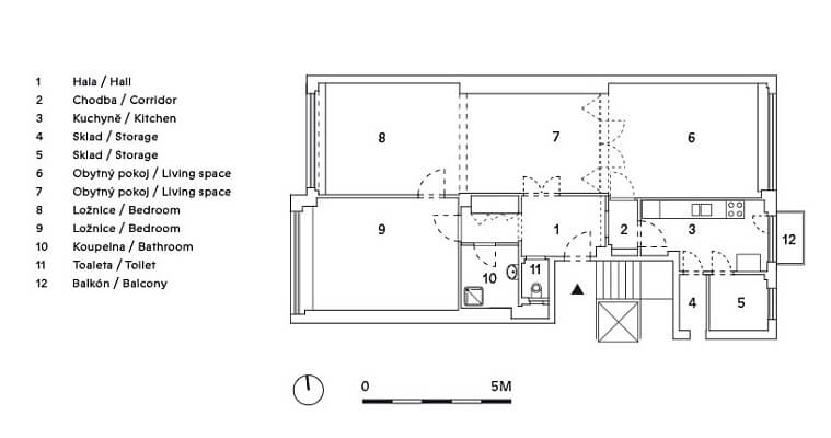
Tradiční dispoziční uspořádání nabízí velký obývací pokoj s jídelnou, samostatnou kuchyni, 2 ložnice, bývalý pokoj pro služku, koupelnu, samostatnou toaletu, vstupní halu, spíž a komoru. Z kuchyně vede malý balkon do vnitrobloku.

Na podlahách jsou repasované parkety, okna jsou též původní repasovaná s kamennými parapety, původní jsou také dveře a radiátory. Byt lze dispozičně upravit na 4+kk. Vytápění je dálkové, k jednotce přísluší sklepní kóje. Funkcionalistický dům od architektů Julia Landsmanna a Martina Reinera výtah a pěkné společné prostory.

Skvělá lokalita hned u centra, perfektně dostupná metrem i tramvají, s kompletní nabídkou služeb a rychlým dosahem velkých parků. Pár kroků od domu funguje základní škola, spousta kaváren, vyhlášené pekařství, obchody i restaurace, na blízkém Řezáčově náměstí se konají pravidelné farmářské trhy. V pěším dosahu je artové kino Oko, Národní galerie i několik malých divadel. Na procházku lze vyrazit do Stromovky nebo do Letenských sadů, možnosti sportovního vyžití nabízí ostrov Štvanice s tenisovými kurty, skateparkem, bikeparkem a přilehlým slalomovým kanálem.

Interiér 107,6 m2, balkon 1,6 m2.

Kromě běžných prohlídek nemovitostí nabízíme také videoprohlídky v reálném čase přes WhatsApp, FaceTime, Messenger, Skype ad.

Vybavení

  • Sklep

Půdorys

  • Půdorys 1

Přehledová tabulka

  • Referenční číslo
    41064
  • Prodejní cena
    Prodáno
  • Poplatky za služby
    7 483 Kč měsíčně
  • Podlahová plocha *
    108 m²
  • Balkon
    1 m²
  • Celková plocha
    109 m²
  • Parkování
    -
  • Sklep
    Ano
  • PENB
    G
* Výměra jednotky dle občanského zákoníku. Plocha je tvořena součtem celé plochy jednotky a ohraničená obvodovými zdmi.

Lokalita

Okolí nemovitosti

Kontaktujte nás

nepovinné
nepovinné
Veškeré zveřejněné údaje obsažené v tomto inzerátu mají pouze informativní charakter a nejsou nabídkou ve smyslu § 1731 nebo § 1732 občanského zákoníku, ani se nejedná o veřejný příslib dle § 1733 občanského zákoníku. Z této nabídky tak nikomu nevzniká nárok na uzavření smlouvy. Společnost SVOBODA & WILLIAMS s.r.o. zprostředkovává údaje (informace) nabyté v dobré víře od vlastníka nemovité věci a z tohoto důvodu nenese odpovědnost ze jejich úplnost, správnost a přesnost. Současně není oprávněna uzavírat jménem vlastníka nemovité věci jakékoliv smlouvy spojené s prodejem nemovitosti.

Nejčerstvější nabídky do Vašeho e-mailu

Lokalita
Parametry
Velikost
Min.
Max.
Cenové rozpětí
Cena min.
Cena max.
Cenové rozpětí
Cena min.
Cena max.