Informace

Byt, 3+kk

Prosvětlený byt ve skandinávském minimalistickém stylu se dvěma zahradami a parkováním se nachází v přízemí bytového domu z roku 2016. Klidná rezidenční lokalita nově vzniklé čtvrti s množstvím novostaveb, upraveným okolím sousedící s velkým parkem Židovské pece.

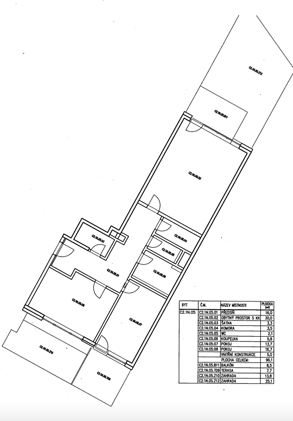
Dispozice bytu nabízí obývací pokoj spojený s kuchyní, ze kterého se vstupuje na západně orientovanou terasu se zahradou, dvě ložnice, jedna se vstupem na druhou zahrádku. Dále se zde nachazí koupelna s vanou, samostatná toaleta, komora s přípojkou na pračku, šatna a vstupní hala s vestavěnými skříněmi.

Vybavení zahrnuje dřevěné podlahy, elektricky ovládané předokenní žaluzie, plastová okna, centrální vytápění, plně vybavenou kuchyni, vestavěné úložné skříně a nábytek na míru v dětském pokoji. K bytu náleží parkovací stání v podzemní garáži a sklep (2,6 m2).

Místo na rozhraní Žižkova a Malešic je ideální pro rodinné bydlení, nabízí veškerou občanskou vybavenost v okolí nebo rychle dostupnou. Dům je vzdálen 4 minuty chůze od zastávek tramvaje, autobusu a nákupního centra, do centra je to 20 min. tramvají. Nejbližší stanice metra je Želivského.

Podlahová plocha 96,1 m2, terasy celkem 16,2 m2, zahrady celkem 38,9 m2.

Kromě běžných prohlídek nemovitostí nabízíme také videoprohlídky v reálném čase přes WhatsApp, FaceTime, Messenger, Skype ad.

Vybavení

  • Výtah
  • Sklep
  • Garáž

Půdorys

  • Půdorys 1

Přehledová tabulka

  • Referenční číslo
    43501
  • Prodejní cena
    Prodáno
  • Podlahová plocha *
    96 m²
  • Terasa
    16 m²
  • Celková plocha
    112 m²
  • Zahrada
    39 m²
  • Světlá výška stropu
    2,60 m
  • Parkování
    Parkovací stání v podzemní garáži
  • Sklep
    Ano
  • PENB
    B
* Výměra jednotky dle občanského zákoníku. Plocha je tvořena součtem celé plochy jednotky a ohraničená obvodovými zdmi.

Lokalita

Okolí nemovitosti

Kontaktujte nás

nepovinné
nepovinné
Veškeré zveřejněné údaje obsažené v tomto inzerátu mají pouze informativní charakter a nejsou nabídkou ve smyslu § 1731 nebo § 1732 občanského zákoníku, ani se nejedná o veřejný příslib dle § 1733 občanského zákoníku. Z této nabídky tak nikomu nevzniká nárok na uzavření smlouvy. Společnost SVOBODA & WILLIAMS s.r.o. zprostředkovává údaje (informace) nabyté v dobré víře od vlastníka nemovité věci a z tohoto důvodu nenese odpovědnost ze jejich úplnost, správnost a přesnost. Současně není oprávněna uzavírat jménem vlastníka nemovité věci jakékoliv smlouvy spojené s prodejem nemovitosti.

Nejčerstvější nabídky do Vašeho e-mailu

Lokalita
Parametry
Velikost
Min.
Max.
Cenové rozpětí
Cena min.
Cena max.
Cenové rozpětí
Cena min.
Cena max.