Informace

Byt, 3+kk

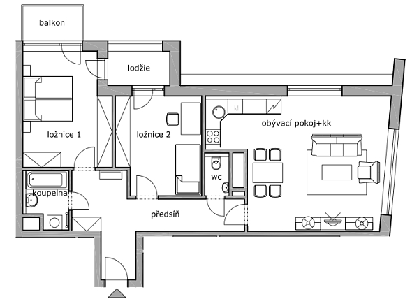
Byt s balkonem a lodžií v 10. nadzemním podlaží (budova A) nového rezidenčního objektu, v sousedství Centrálního parku, v pěší vzdálenosti od stanice metra Hůrka. Byt nabízí vstupní halu, obývací pokoj s jídelním prostorem a otevřenou kuchyní, 2 ložnice, koupelnu a toaletu pro hosty. Balkon a lodžie přístupné z obou ložnic. Vybavení zahrnuje plovoucí podlahy, dlažbu, zařízenou koupelnu, deskové radiátory, přípravu pro kuchyňskou linku, bezpečnostní vstupní dveře, sklep. K bytu náleží 1 garážové stání za příplatek 265 232 Kč včetně DPH. Interiér 82.11 m2, balkon/lodžie 6,81 m2. Mateřská a základní škola vzdálena 200 m, obchodní dům Kaufland 3 minuty chůze.

V projektu celkem 117 bytů v dispozicích 1kk až 3kk. Ceník a kompletní informace na vyžádání u makléře.

Pro více informací o projektu navštivte www.rezidencestodulky.cz

Vybavení

  • Sklep

Půdorys

  • Půdorys 1
  • Půdorys 2

Přehledová tabulka

  • Referenční číslo
    803
  • Prodejní cena
    Prodáno
  • Podlahová plocha *
    81 m²
  • Balkon
    7 m²
  • Celková plocha
    88 m²
  • Parkování
    -
  • Sklep
    Ano
  • PENB
    G
* Výměra jednotky dle občanského zákoníku. Plocha je tvořena součtem celé plochy jednotky a ohraničená obvodovými zdmi.

Lokalita

Okolí nemovitosti

Kontaktujte nás

nepovinné
nepovinné
Veškeré zveřejněné údaje obsažené v tomto inzerátu mají pouze informativní charakter a nejsou nabídkou ve smyslu § 1731 nebo § 1732 občanského zákoníku, ani se nejedná o veřejný příslib dle § 1733 občanského zákoníku. Z této nabídky tak nikomu nevzniká nárok na uzavření smlouvy. Společnost SVOBODA & WILLIAMS s.r.o. zprostředkovává údaje (informace) nabyté v dobré víře od vlastníka nemovité věci a z tohoto důvodu nenese odpovědnost ze jejich úplnost, správnost a přesnost. Současně není oprávněna uzavírat jménem vlastníka nemovité věci jakékoliv smlouvy spojené s prodejem nemovitosti.

Nejčerstvější nabídky do Vašeho e-mailu

Lokalita
Parametry
Velikost
Min.
Max.
Cenové rozpětí
Cena min.
Cena max.
Cenové rozpětí
Cena min.
Cena max.