Informace

Pozemek

Příležitost ke koupi stavebního pozemku s celkovou výměrou 1 211 m2 ve velmi klidné a příjemné lokalitě ve Vrané nad Vltavou. Pozemek je situovaný pár kroků od lesa, v mírném svahu se vzrostlými stromy a keři, a těší se hezkému výhledu do zeleně.

Na pozemku jsou zajištěny veškeré inženýrské sítě, oplocení ze tří stran a příjezdová komunikace. Možnost zakoupení právě připravovaného projektu architekta Ivana Kroupy na výstavbu domu se střešní terasou, balkónem a dvougaráží. Benefitem je také architektonická kvalita obou sousedních domů, realizovaných stejnou osobou.

Jedná se o oblíbenou rezidenční a rekreační lokalitu s dojezdem do Prahy za 16 minut mimo špičku. Pozemek je vzdálen necelých 5 minut jízdy od vlakového nádraží, v blízkosti je dostupná také základní škola, školka, dětské hřiště a BMX park.

Pozemek 1 211 m2.

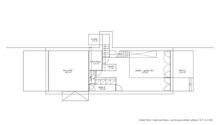
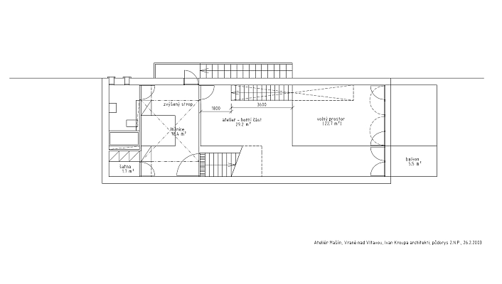
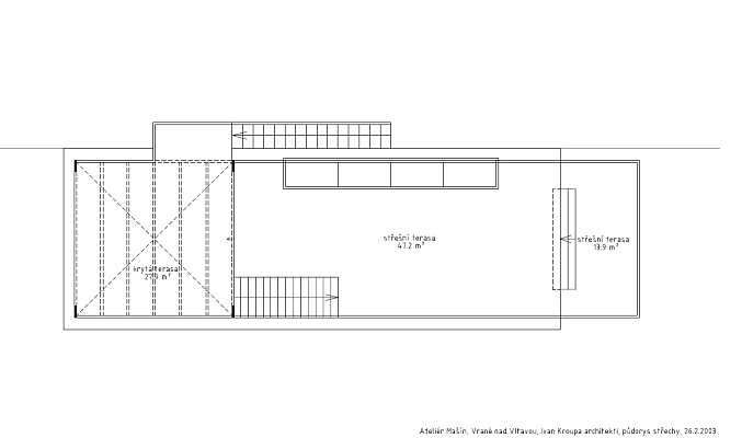
Půdorys

  • Půdorys 1
  • Půdorys 2
  • Půdorys 3
  • Půdorys 4
  • Půdorys 5
  • Půdorys 6
  • Půdorys 7
  • Půdorys 8
  • Půdorys 9
  • Půdorys 10

Přehledová tabulka

  • Referenční číslo
    24991
  • Prodejní cena
    Prodáno
  • Celková plocha
    1 211 m²
  • Typ pozemku
    Bydlení

Kontaktujte nás

nepovinné
nepovinné
Veškeré zveřejněné údaje obsažené v tomto inzerátu mají pouze informativní charakter a nejsou nabídkou ve smyslu § 1731 nebo § 1732 občanského zákoníku, ani se nejedná o veřejný příslib dle § 1733 občanského zákoníku. Z této nabídky tak nikomu nevzniká nárok na uzavření smlouvy. Společnost SVOBODA & WILLIAMS s.r.o. zprostředkovává údaje (informace) nabyté v dobré víře od vlastníka nemovité věci a z tohoto důvodu nenese odpovědnost ze jejich úplnost, správnost a přesnost. Současně není oprávněna uzavírat jménem vlastníka nemovité věci jakékoliv smlouvy spojené s prodejem nemovitosti.

Nejčerstvější nabídky do Vašeho e-mailu

Lokalita
Parametry
Velikost
Min.
Max.
Cenové rozpětí
Cena min.
Cena max.
Cenové rozpětí
Cena min.
Cena max.